En vente Appartement 2 pièces

Ville Saint-Jean-d'Aulps
Code postal 74430
Type de bien Appartement
Surface
Nombre de pièces 2 pièces
Prix 260 000,00 €
Informations sur l'annonceur
Annonce de professionnel
Nom
Adresse
74110

Description

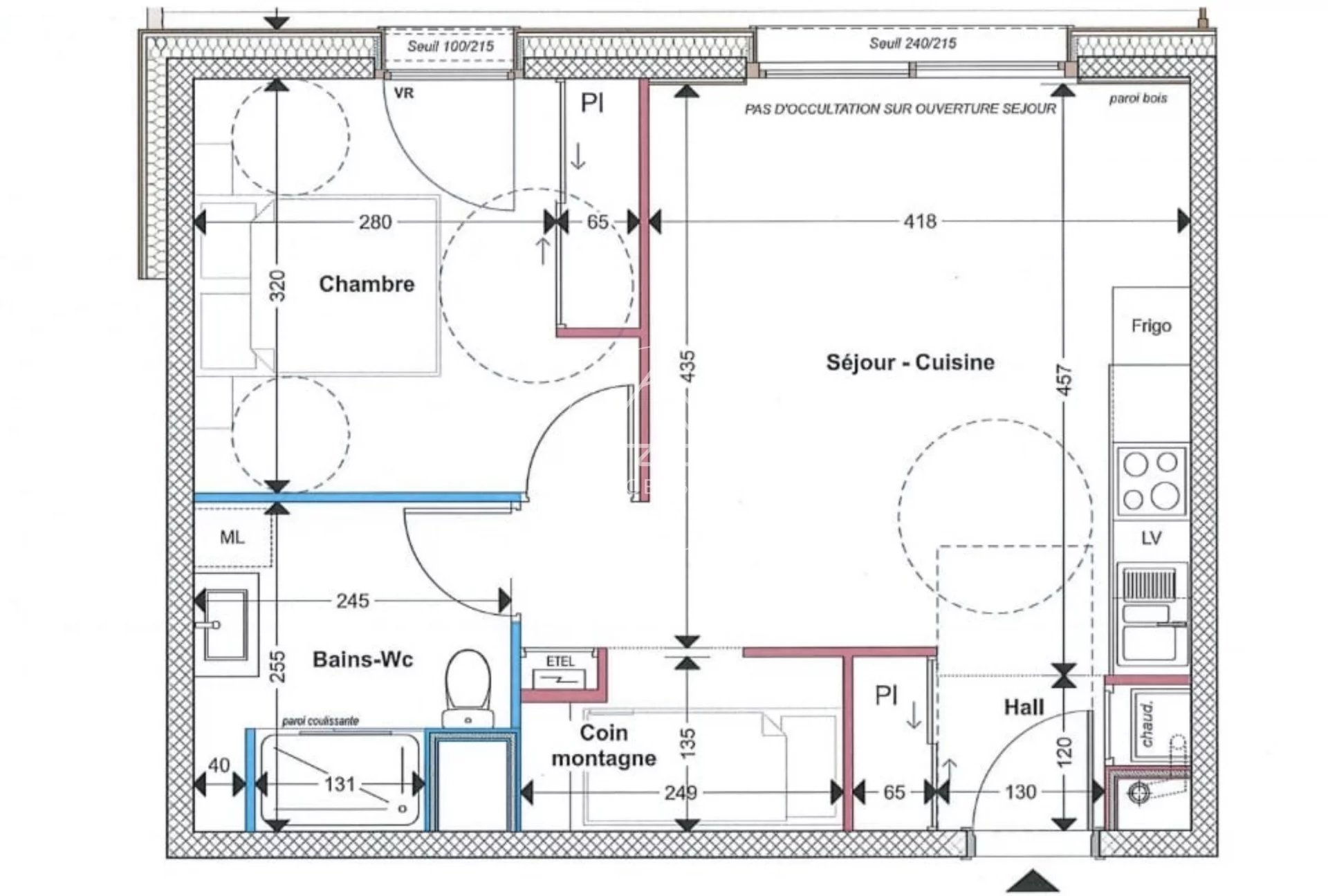
Exclusivité Ascension Immobilier, Station de Saint-Jean-d’Aulps, résidence récente (2024) au pied des pistes. Appartement type 2 pièces avec coin montagne de 42.75 m² avec terrasse de 16.25 m². Pièce à vivre ouverte accès terrasse, cuisine américaine équipée, coin montagne, chambres avec accès extérieur, placard intégré et une salle de d'eau, grand bac douche avec toilette. Casier à ski, cave et garage fermé complètent l’appartement. Pour plus d'informations contactez-nous au +33 (0)4.50.75.77.31, ASCENSION IMMOBILIER MORZINE. Visites possibles du lundi au samedi. *Ref : 172 - Honoraires à la charge du vendeur - Les informations sur les risques auxquels ce bien est exposé sont disponibles sur le site Géorisques http://www.georisques.gouv.fr

Les photos du bien

Les diagnostics


DPE
Bâtiment économe
42
Bâtiment énergivore
en kWh.an/m².an
GES
Faible émission de GES*
105
Forte émission de GES*
* Gaz à effet de serre en KgeqCO2/m².an

Contacter