En vente Bien 3 pièces 104 m2

Ville Fréjus
Code postal 83600
Type de bien Bien
Surface 104 m2
Nombre de pièces 3 pièces
Prix 230 000,00 €
Informations sur l'annonceur
Annonce de professionnel
Nom
Adresse
83600
Portable 0612158077

Description

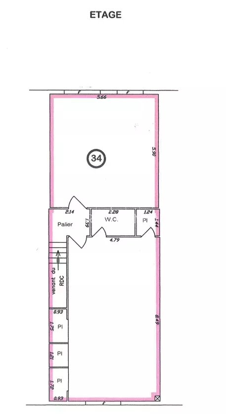
LYRIA IMMO vous propose ce local d'activité à la vente à Fréjus, Zone de la Palud d'une superficie de 104 m2. Il offre un espace accueil, stockage ou un bureau de 20 m2 au rez-de-chaussée. Au 1er étage, il dispose de deux bureaux de 33 et 40 m2 ainsi qu'un bloc sanitaire avec évier, et, une pièce de rangement pouvant servir de kitchenette. Le local est entièrement climatisé, et nous retrouvons du carrelage dans le bureau en face des escaliers, et, du parquet dans le local dos aux escaliers. Il dispose de la fibre et le mobilier peut être laissé si souhaité par le futur acquéreur. Deux nombreuses places de parking sont disponibles dans l'allée ainsi qu'un parking a 50 mètres. Prix de vente : 230.000 € honoraires d'agence inclus Informations et visites sur simple demande Les informations sur les risques auxquels ce bien est exposé sont disponibles sur le site Géorisques : www.georisques.gouv.fr %agence

Les photos du bien

Les diagnostics


DPE
Energie non communiquée
GES
GES non communiqué