En vente Appartement 3 pièces 78 m2
| Ville | Paris |
| Code postal | 75007 |
| Type de bien | Appartement |
| Surface | 78 m2 |
| Nombre de pièces | 3 pièces |
| Prix | 1 395 000,00 € |
| Informations sur l'annonceur | |
|---|---|
| Annonce de professionnel |
|
| Agence | AXIHOME France Immobilier Voir toutes les annonces |
| Adresse | 14 Rue Pasteur |
| 78450 Villepreux | |
| Portable | 0662812858 |
Description
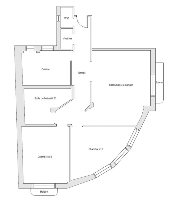
L'agence AXIHOME France vous propose : Idéalement placé à coté de l'Eglise St Pierre du Gros Cailloux et de la fameuse rue Cler, appartement de 79 m2 de 3 pièces agrémenté de 2 balconnets. Situé au 3ème étage d'un immeuble en bon état des années 40, l'appartement est orienté sud / ouest et ne nécessite pas de travaux. Pas de vis à vis direct. Vue sur la rue St dominique et l'église St Pierre. Le bien est vendu avec une cave. Une occupation par bail est effective jusqu'au 30 juin 2026. Taxe Foncière annuelle : 1 723 euros. Prix du bien : 1 395 000 EUR FAI (Frais d'agence inclus et à la charge du vendeur).
Les photos du bien
Les diagnostics
| Bâtiment économe |
|---|
| |
| |
| |
| 234 |
| |
| |
| |
| Bâtiment énergivore |
| en kWh.an/m².an |
| Faible émission de GES* |
|---|
| |
| |
| |
| |
| 51 |
| |
| |
| Forte émission de GES* |
| * Gaz à effet de serre en KgeqCO2/m².an |
Les informations complémentaires
Appartement de 3 pièces rue St Dominique Paris 7
Prix de vente honoraires TTC inclus : 1 395 000 €