En vente Maison 3 pièces

Ville Ghisonaccia
Code postal 20240
Type de bien Maison
Surface
Nombre de pièces 3 pièces
Prix 259 000,00 €
Informations sur l'annonceur
Annonce de professionnel
Nom
Adresse
20227
Téléphone Fixe 0495307669

Description

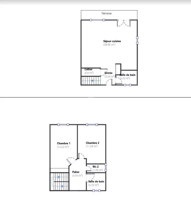
Duplex T3 contemporain avec jardin – à 5 minutes de la plage Situé à Ghisonaccia, ce duplex climatisé combine confort moderne et emplacement stratégique. À l’étage, deux chambres avec placards muraux et une salle d’eau offrent un espace nuit fonctionnel et agréable. Au rez-de-chaussée, vous profitez d’un grand séjour avec salle à manger, d’une cuisine américaine entièrement équipée, d’un WC indépendant, d’un cellier, d’une salle de bain, d’une terrasse couverte et d’un jardin clos, parfait pour vos moments de détente ou pour accueillir vos proches. Très bien situé, à seulement cinq minutes des plages et des commerces, ce bien est une opportunité à saisir. Contactez l’agence pour plus d’informations ou pour organiser une visite.

Les photos du bien

Les diagnostics


DPE
Bâtiment économe
130
Bâtiment énergivore
en kWh.an/m².an
GES
Faible émission de GES*
4
Forte émission de GES*
* Gaz à effet de serre en KgeqCO2/m².an