En vente Terrain

Ville Compiègne
Code postal 60200
Type de bien Terrain
Surface
Nombre de pièces
Prix 710 000,00 €
Informations sur l'annonceur
Annonce de professionnel
Agence Arthurimmo.com Agence Saint Hubert
Voir toutes les annonces
Adresse 14 rue Magenta
60200 Compiègne
Téléphone Fixe 0344095299

Description

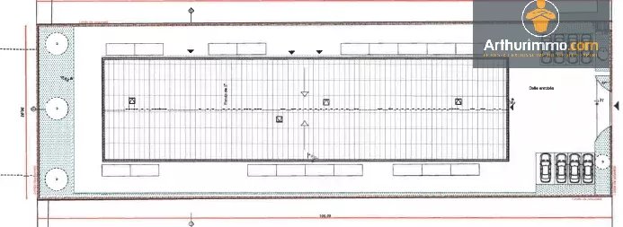
Compiègne ZAC de mercière à 10 min de l'A1. Nous vous proposons un terrain en zone industrielle de 3000 m² avec un permis de construire accepté pour un bâtiment de plus de 1000 m² et 26 places de parkings. Prix de vente : 690.000 euros Hors taxes, Hors Droits, Hors Honoraires de négociation. Honoraires de négociation : Forfait de 20.000 euros HT à la charge de l'acquéreur.

Les photos du bien

Les diagnostics


DPE
Bâtiment économe
-1
Bâtiment énergivore
en kWh.an/m².an
GES
Faible émission de GES*
-1
Forte émission de GES*
* Gaz à effet de serre en KgeqCO2/m².an

Les informations complémentaires

A 45 minutes de Paris
Prix de vente honoraires TTC inclus : 690 000 €