En vente Appartement 4 pièces 63 m2

Ville Menton
Code postal 06500
Type de bien Appartement
Surface 63 m2
Nombre de pièces 4 pièces
Prix 749 000,00 €
Informations sur l'annonceur
Annonce de professionnel
Nom
Adresse
06300
Portable 0631805595

Description

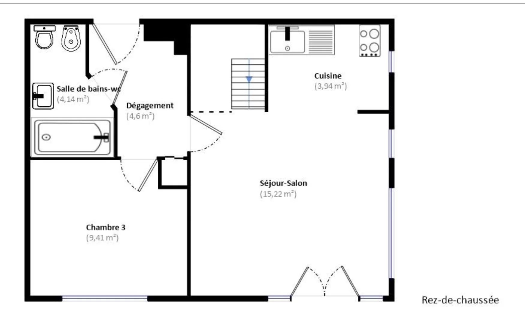
Menton Promenade du Soleil, limite Roquebrune - DUPLEX AVEC JARDIN VUE MER ET GARAGE Appartement T4 dans la prestigieuse Résidence La Piscine, signée Fortuné Palmero. Le bien est en duplex, avec double accès, jardin privé et vue mer panoramique. Rez-de-chaussée : entrée, cuisine semi-ouverte, chambre et salle de bains avec WC. Accès à la terrasse et au jardin privé. Vue mer. Exposition sud-est et ouest. Rez-de-jardin : deuxième entrée, deux chambres et deuxième salle de bains avec WC. Double vitrage en PVC et chauffage individuel (climatisation réversible et radiateurs électriques). Charges de copropriété : Vendu avec une cave et possible garage fermé. Prix 749 000€ FAI, honoraires à la charge du vendeur. Les informations sur les risques auxquels ce bien est exposé sont disponibles sur le site Géorisques : georisques.gouv.fr

Les photos du bien

Les diagnostics


DPE
Energie non communiquée
GES
Faible émission de GES*
275
Forte émission de GES*
* Gaz à effet de serre en KgeqCO2/m².an