En vente Appartement 1 pièce 34 m2
| Ville | Monaco |
| Code postal | 98000 |
| Type de bien | Appartement |
| Surface | 34 m2 |
| Nombre de pièces | 1 pièce |
| Prix | 1 190 000,00 € |
| Informations sur l'annonceur | |
|---|---|
| Annonce de professionnel |
|
| Nom | |
| Adresse | |
| 98000 | |
| Téléphone Fixe | 0788294232 |
Description
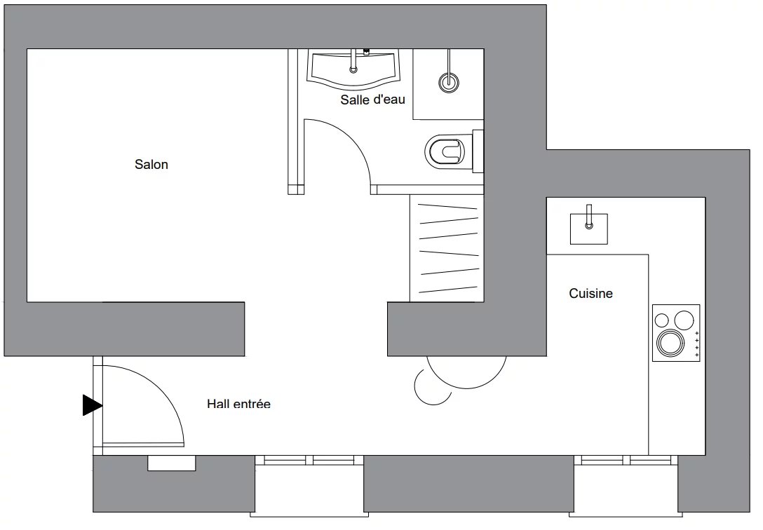
Beau potentiel de restructuration pour ce studio situé dans une copropriété au calme avec très peu de charges. Il se compose d'une entrée, un séjour, une salle de douches spacieuse et une cuisine indépendante. Ce bien est soumis aux dispositions de la loi 1235.
Les photos du bien
Les diagnostics
DPE
| Energie non communiquée |
|---|
GES
| GES non communiqué |
|---|