En vente Maison 7 pièces 255 m2
| Ville | BOISSERON |
| Code postal | 34160 |
| Type de bien | Maison |
| Surface | 255 m2 |
| Nombre de pièces | 7 pièces |
| Prix | 629 000,00 € |
| Informations sur l'annonceur | |
|---|---|
| Annonce de professionnel |
|
| Agence | Avenue Immobilier Montpellier - Le Crès Voir toutes les annonces |
| Adresse | 33 Grand' Rue |
| 34920 Le Crès | |
| Téléphone Fixe | 0411920222 |
| Portable | 0627106373 |
Description
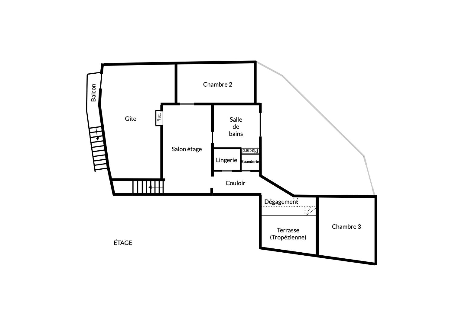
Maison de village rénovée, datant du XVe siècle offrant 255m2 habitables, 5 pièces + gîte indépendant, dépendances de 45m2 et agréable jardin avec petite piscine. Au rez-de-chaussée, l'entrée mène à l'espace de vie de 70m2 composé d'une salle à manger, d'une cuisine équipée et d'un vaste salon avec cheminée, l'ensemble avec pierres apparentes, colonnes et plafond voutée. Une large baie-vitrée donne accès au jardin. Également, une chambre de 24m2 et une salle de douche d'appoint avec wc. A l'étage, une grande pièce de 25m2 aménagée en salon distribue 2 chambres de 23m2 et 25m2, une salle de bains de 11m2 avec wc, une lingerie, une buanderie et une terrasse "tropézienne" de 15m2. Sur le même niveau, accessible depuis l'escalier extérieur, un gîte indépendant 2 pièces de 58m2 avec balcon (poss. ouvrir sur l'habitation principale ou vente séparément). A l'extérieur, un agréable jardin nichée dans la verdure avec petite piscine 2x2m et 2 dépendances de 18m2 et 27m2. Accès sur la rue arrière par une porte cochère permettant de stationner à l'abri vélos, motos et éventuellement une petite voiture. Maison bien rénovée (électricité, plomberie, sanitaires...) en respectant le cachet d'époque et en apportant de bonnes prestations. Bien d'exception idéal pour une grande maison familiale comme pour satisfaire une projet de maison d'hôte. Entre Montpellier et Sommières - Au coeur d'un village très charmant avec ses rues étroites et son patrimoine - Proche de toutes les commodités (boulangerie, restaurants, pharmacie...) (3.11 % honoraires TTC à la charge de l'acquéreur.) Copropriété de 2 lots - dont 2 lots habitation.
Les photos du bien
Les diagnostics
| Bâtiment économe |
|---|
| |
| |
| |
| |
| 328 |
| |
| |
| Bâtiment énergivore |
| en kWh.an/m².an |
| Faible émission de GES* |
|---|
| |
| 10 |
| |
| |
| |
| |
| |
| Forte émission de GES* |
| * Gaz à effet de serre en KgeqCO2/m².an |