En vente Maison 7 pièces 140 m2
| Ville | BAYEUX |
| Code postal | 14400 |
| Type de bien | Maison |
| Surface | 140 m2 |
| Nombre de pièces | 7 pièces |
| Prix | 340 000,00 € |
| Informations sur l'annonceur | |
|---|---|
| Annonce de professionnel |
|
| Agence | RUE DU PARTICULIER Bayeux Voir toutes les annonces |
| Adresse | |
| 14400 BAYEUX | |
| Téléphone Fixe | 0231929576 |
Description
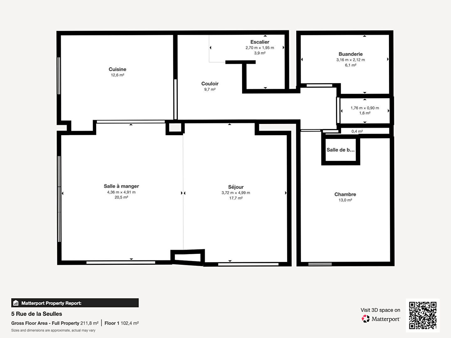
MAISON DE 149 M2 AVEC VIE DE PLAIN-PIED - 4 CHAMBRES - PROCHE COMMODITÉS Uniquement chez Rue du Particulier, nous vous proposons à la vente cette maison mitoyenne d'un seul côté, sans travaux, offrant 149,04 m² habitables et idéalement située à proximité de Tilly-sur-Seulles. Elle est édifiée sur un terrain d'environ 900 m². Au rez-de-chaussée, vous découvrirez une très belle pièce de vie lumineuse d'environ 50 m2 comprenant une cuisine AMÉNAGÉE ET ÉQUIPÉE, ouverte sur la salle à manger et le séjour. Un couloir dessert ensuite une chambre de 13 m² avec sa salle d'eau privative, une buanderie ainsi qu'un WC indépendant avec rangements. A l'étage, le palier mène à deux grandes chambres de 17,1 m² et 17,7 m², une salle d'eau avec baignoire et douche, ainsi qu'un WC indépendant. Le deuxième étage offre un espace comprenant un bureau et une chambre de 20 m² au sol. A l'extérieur, vous profiterez d'un kiosque en bois et d'un chalet. Petit plus : un robot de tonte automatique, assurant un entretien régulier du jardin et une pelouse impeccable, pourra être laissé lors de la vente. La maison se situe à seulement 3 minutes en voiture de toutes les commodités : grande surface, boulangerie, boucherie, pôle santé, pharmacie, écoles, collège, etc. Une boulangerie, un restaurant et un bar-tabac se trouvent à proximité de la maison. Cuisine aménagée et équipée. Huisseries en PVC double vitrage. Chauffage au fioul. Assainissement individuel. Taxe foncière : 1091 euros DPE effectué en 2025 : Montant estimé des dépenses annuelles d'énergie pour un usage standard : entre 3 950 euros et 5 400 euros. Prix moyens des énergies indexés au 01/01/2021 (abonnements compris). DPE : E / GES : E Consommation énergie primaire : 220 kWh/m2/an Les informations sur les risques auxquels ce bien est exposé sont disponibles sur le site Géorisques : https://www.georisques.gouv.fr/ Honoraires à la charge du vendeur.
Les photos du bien
Les diagnostics
| Bâtiment économe |
|---|
| |
| |
| |
| 220 |
| |
| |
| |
| Bâtiment énergivore |
| en kWh.an/m².an |
| Faible émission de GES* |
|---|
| |
| |
| |
| |
| 57 |
| |
| |
| Forte émission de GES* |
| * Gaz à effet de serre en KgeqCO2/m².an |