En vente Maison 3 pièces 58 m2

Ville LE CROTOY
Code postal 80550
Type de bien Maison
Surface 58 m2
Nombre de pièces 3 pièces
Prix 338 000,00 €
Informations sur l'annonceur
Annonce de professionnel
Agence L'ADRESSE Rue
Voir toutes les annonces
Adresse
80120 Rue
Téléphone Fixe 0322246534

Description

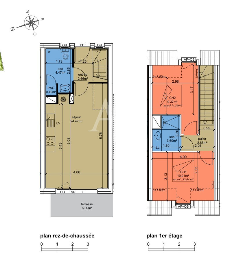
Votre Agence l'Adresse vous propose cette maison T3 Neuve à Le Crotoy (Baie de Somme) Dans une résidence neuve à taille humaine, découvrez cette maison T3 offrant un séjour lumineux avec cuisine aménagée et équipée, une salle d'eau avec wc ainsi qu' une terrasse. A l'étage : Un Palier desservant 2 chambres et une salle d'eau. Prestations de qualité, 2 stationnements privatifs inclus. Emplacement recherché, à proximité de la mer. Livraison : 4ème trimestre 2027 Frais de Notaire réduits Idéal résidence principale, secondaire ou investissement. Frais de notaire réduits.. Contactez-nous pour plans et disponibilités ! 03.22.24.65.34 Copropriété de 26 lots - dont 26 lots habitation.

Les photos du bien

Les diagnostics


DPE
Energie non communiquée
GES
GES non communiqué