En vente Appartement 5 pièces
| Ville | Paris 4ème |
| Code postal | 75004 |
| Type de bien | Appartement |
| Surface | |
| Nombre de pièces | 5 pièces |
| Prix | 1 880 000,00 € |
| Informations sur l'annonceur | |
|---|---|
| Annonce de professionnel |
|
| Agence | Les Enfants Rouges Voir toutes les annonces |
| Adresse | 17 place des vosges |
| 75004 Paris 4ème | |
| Téléphone Fixe | 0185740101 |
Description
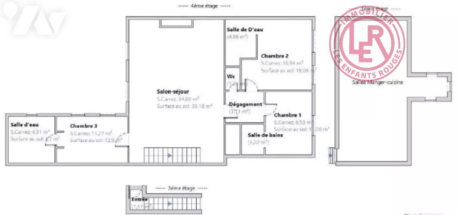
PARIS IV A quelques minutes de la Place de la Vosges, au sein d'un immeuble du 17ème siècle, très bien entretenu, au 3ème et dernier étage, duplex de 5 pièces, traversant (Est/Ouest) de 122 m2 Loi Carrez et 144 m2 au sol. Avec ces volumes impressionnants, plus de 5 mètres au faîtage, il se compose au 3ème étage d’une pièce de réception baignée de lumière, avec cheminée fonctionnelle et poutres apparentes, 3 chambres avec chacune leur pièce d’eau, donnant sur la rue de Sévigné, et à l’étage par escalier privatif au garde corps composé de pièces sculptées comme des oeuvres d’arts en fer forgé, une grande mezzanine avec cuisine dinatoire et une confortable salle à manger, avec accès à un balconnet dominant l’église Saint-Paul et le Musée du Carnavalet. Sectorisation Charlemagne, idéal pour une famille. Prestations : Appartement rénové, aux multiples aménagements, prêt à vivre, confortable, calme, 2 toilettes, balconnet et cave. Les informations sur les risques auxquels ce bien est exposé sont disponibles sur le site Géorisques : www.georisques.gouv.fr. Agent commercial immatriculée au Registre spécial des agents commerciaux du greffe du tribunal de commerce de PARIS, sous le numéro 483 083 077.
Les photos du bien
Les diagnostics
| Bâtiment économe |
|---|
| |
| |
| |
| 240 |
| |
| |
| |
| Bâtiment énergivore |
| en kWh.an/m².an |
| Faible émission de GES* |
|---|
| |
| |
| |
| |
| 53 |
| |
| |
| Forte émission de GES* |
| * Gaz à effet de serre en KgeqCO2/m².an |