En vente Immeuble 250 m2
| Ville | Deuil-la-Barre |
| Code postal | 95170 |
| Type de bien | Immeuble |
| Surface | 250 m2 |
| Nombre de pièces | |
| Prix | 630 000,00 € |
| Informations sur l'annonceur | |
|---|---|
| Annonce de professionnel |
|
| Agence | VOVARD FRÉDÉRIC Voir toutes les annonces |
| Adresse | |
| 95350 St Brice sous Foret | |
| Négociateur | VOVARD IMMOBILIER |
| Téléphone | 06.62.62.95.78 |
Description
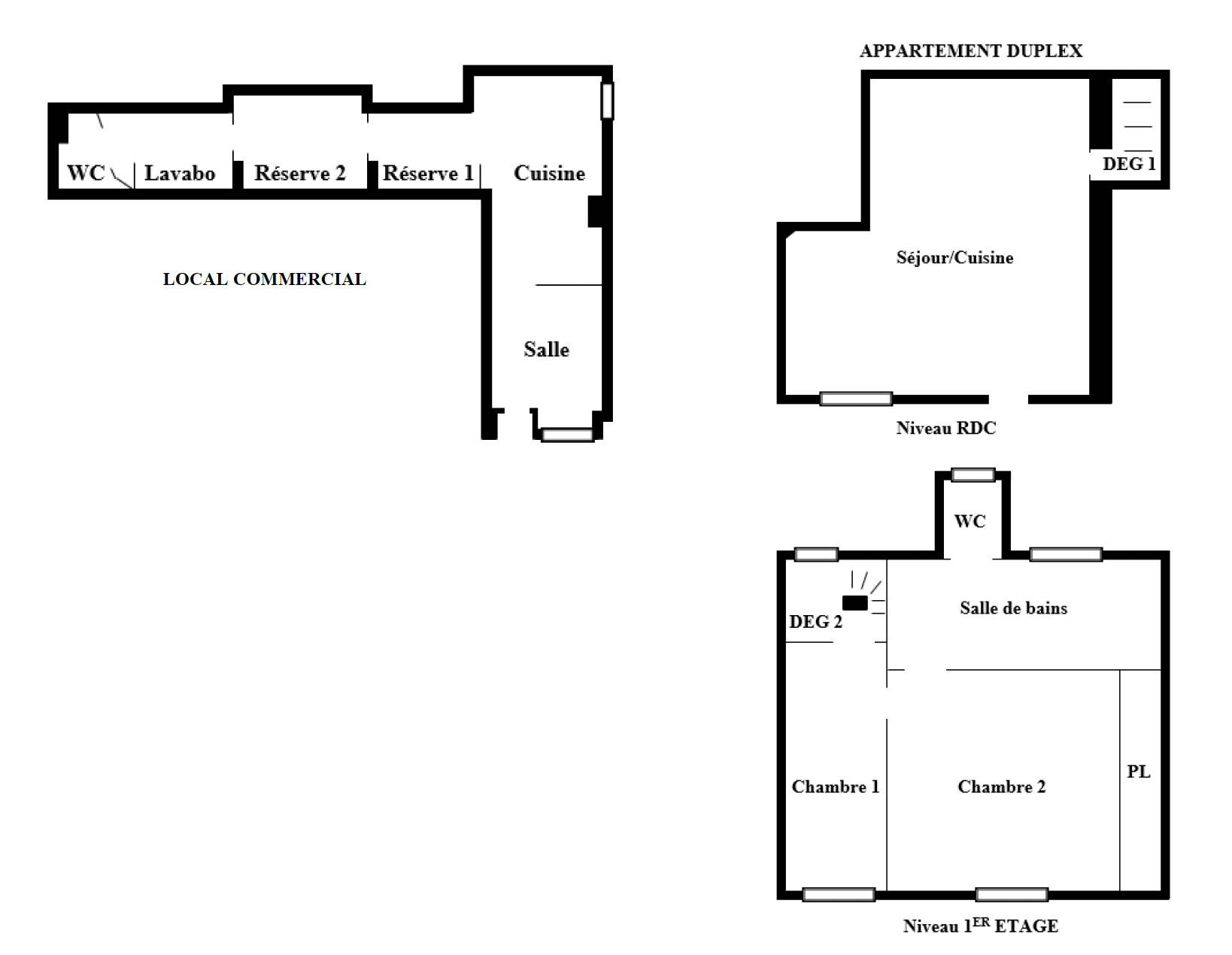
VOVARD IMMOBILIER tel : 01 39 86 06 70 vous propose - A vendre - Immeuble de rapport comprenant un local commercial 43,06 m², un appartement duplex 71,43 m² et un grand local commercial de 136,72 m², idéalement situés rue de l'Église à Deuil-la-Barre, à proximité immédiate du centre, des commerces, des écoles et à 10 minutes à pied de la gare SNCF (ligne H vers Paris Gare du Nord).DESCRIPTION DES LIEUX- Local commercial no1 (43,06 m²) : salle 16,33 m², cuisine 13,39 m², réserves, lavabo et WC. local loué 1229 EUR / mois à la mairie de Deuil la Barre- Appartement duplex (71,43 m²) : séjour / cuisine 28,53 m², dégagements, chambre 1 de 11,26 m², chambre 2 de 15,66 m² avec placard de 3,40 m², salle de bains 8,67 m², WC. - Appartement loué 969 EUR / mois depuis le 30 / 09 / 2011- Grand local commercial no2 (136,72 m²) : plusieurs réserves (28,11 m², 9,16 m², 14,29 m², 17,32 m²), deux cuisines (8,64 m² et 5,16 m²), deux arrière-cuisines (22,32 m² et 9,16 m²), deux bureaux (7,54 m² et 10,22 m²) et salle d'eau. Cave de 21,13 m² en complément. - Local loué 2190 EUR / mois depuis le 08 / 03 / 2023, soit un revenu brut total mensuel de 4388 EUR. Charges mensuelles : eau (Veolia) 135 EUR, taxe foncière : 388 EUR par mois. Revenu net mensuel : 3865 EUR.Immeuble vendu entièrement occupé, idéal pour investisseur recherchant un actif sécurisé avec un rendement élevé. Diagnostics disponibles dans le dossier,DOSSIER SUR DEMANDE DETAILLE !- Agent immobilier spécialisé à Saint-Brice-sous-Forêt et dans la Vallée de Montmorency, je vous propose une estimation offerte de votre bien.Informations LOI ALUR : Soumis au régime de copropriété.Honoraires charge vendeur. (gedeon_57659_32228947)
Les photos du bien
Les diagnostics
| Bâtiment économe |
|---|
| |
| |
| |
| |
| 320 |
| |
| |
| Bâtiment énergivore |
| en kWh.an/m².an |
| Faible émission de GES* |
|---|
| |
| 10 |
| |
| |
| |
| |
| |
| Forte émission de GES* |
| * Gaz à effet de serre en KgeqCO2/m².an |