En vente Boutique 200 m2
| Ville | Nice |
| Code postal | 06000 |
| Type de bien | Boutique |
| Surface | 200 m2 |
| Nombre de pièces | |
| Prix | 540 000,00 € |
| Informations sur l'annonceur | |
|---|---|
| Annonce de professionnel |
|
| Nom | |
| Adresse | |
| 06300 | |
| Portable | 0631805595 |
Description
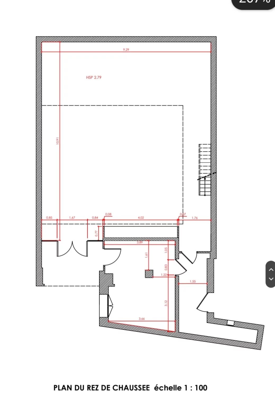
En plein cœur de Nice, ce local commercial totalement indépendant offre un espace ouvert de 141 m² au sol avec une hauteur de 9 m, pouvant être aménagé en immense open space, plusieurs bureaux et loft. Avec une mezzanine actuelle de 55 m² extensible à 123 m², il offre une grande adaptabilité. Sa hauteur sous plafond généreuse crée une atmosphère lumineuse et spacieuse, idéale pour inspirer la créativité. Cet emplacement central allie praticité et potentiel d'expansion. Vendu avec un stationnement. Honoraires à la charge du vendeur. Les informations sur les risques auxquels ce bien est exposé sont disponibles sur le site Géorisques : georisques.gouv.fr
Les photos du bien
Les diagnostics
DPE
| Bâtiment économe |
|---|
| |
| |
| |
| 217 |
| |
| |
| |
| Bâtiment énergivore |
| en kWh.an/m².an |
GES
| Faible émission de GES* |
|---|
| -2 |
| |
| |
| |
| |
| |
| |
| Forte émission de GES* |
| * Gaz à effet de serre en KgeqCO2/m².an |