En vente Appartement

Ville Bissen
Pays Luxembourg
Type de bien Appartement
Surface
Nombre de pièces
Prix 599 000,00 €
Informations sur l'annonceur
Annonce de professionnel
Agence AXHOME IMMO SARL
Voir toutes les annonces
Adresse 12 rue du Château d'eau
3364 Leudelange
Téléphone Fixe +352-691911993

Description

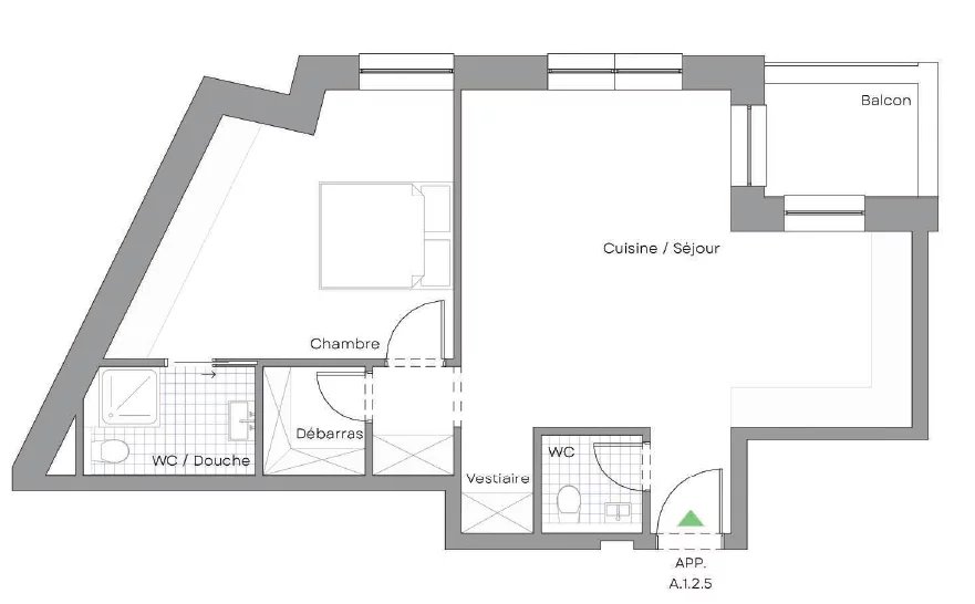
AXHOME IMMO vous propose ce project de construction à BISSEN """""""""""""Résidences Adamseck""""""""""""""""" Au sein d’élégantes résidences contemporaines situées dans le centre de Bissen, vous sont proposés 16 appartements avec des prestations haut de gamme, disposant d’une excellente performance énergétique tout en étant en adéquation avec les dernières normes en vigueur. Installées dans le centre du village, ces nouvelles résidences intimistes accueillent 16 appartements neufs dans un cadre paysager tout en étant proche de toutes les facilités nécessaires à un quotidien pratique. Appartement situé rez-de-chaussée Cuisine / Séjour Débarras Vestiaire Chambre WC WC / Douche Balcon 2 Parkings intérieurs 1 Cave Les prix sont affichés parkings et caves inclus TVA de 3% sous condition d'acceptation de votre dossier par l'administration de l'enregistrement et des domaines. Les images et visualisations 3D intérieurs sont à titre indicatif et pour visualisation seulement et ne représente qu’un exemple d’aménagement Les surfaces peuvent varier légèrement en fonction du mesurage officiel par établissement du cadastre vertical. Le cadastre vertical va définir les surfaces exactes pour l'acte notarié. Les résidences seront répartie en 2 blocs de 3 étages chacun, et proposeront une typologie variée de 16 logements de haut standing, adaptés à tous les âges et à toutes les situations de vie. La résidence comprendra 14 appartements de 1 à 5 chambres et de 2 duplex de 4 chambres. 
Certaines habitations disposeront d’une terrasse ou d’un Balcon.
 Les appartements disposeront de 1 à 2 places de parkings privatif ainsi qu’une cave qui seront inclut dans le prix de vente. 
 Classe énergétique A-A-A (Triple A) Délai de livraison : 18 mois à partir du début des travaux. Prix non soumis à l'indexation. Pour plus d'informations n'hésitez pas à nous contacter : -par téléphone: +352 691911993 -par email: info@axhome.lu Nous restons également à votre entière disposition dans le cas où vous désirez vendre ou louer votre bien. Nous prenons en charge toutes les démarches administratives liées au bien immobilier. Nous sommes également à votre disposition pour des estimations gratuites.

Les photos du bien

Les diagnostics


DPE
Energie non communiquée
GES
GES non communiqué