En vente Maison 5 pièces

Ville Solaro
Code postal 20240
Type de bien Maison
Surface
Nombre de pièces 5 pièces
Prix 430 500,00 €
Informations sur l'annonceur
Annonce de professionnel
Nom
Adresse
20227
Téléphone Fixe 0495307669

Description

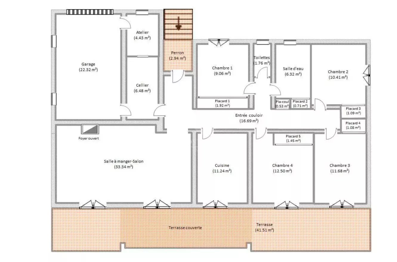
EXCLUSIVITÉ AGENCE "Actuellement sous offre" À Solaro (20240), craquez pour cette belle maison de plain-pied de 120m² habitables et pleine de charme ! Elle est située dans un quartier calme et recherché, parfait pour une vie paisible. Sur un terrain arboré de 1700 m² environ, profitez de votre piscine privée pour des moments de détente ensoleillés. À l’intérieur, 4 chambres lumineuses vous accueillent dans un cadre chaleureux et convivial. Un grand garage complète le bien, offrant praticité et confort au quotidien. Vide sanitaire et combles amenageables. Et cerise sur le gâteau : la plage est à seulement 5 minutes ! École primaire à 5 minutes. Lycée et college a 15 minutes avec arret de bus à 5 minutes. Un véritable havre de paix, idéal pour les familles ou pour ceux qui rêvent de tranquillité sans s’éloigner des commodités. Une opportunité à ne pas laisser passer !

Les photos du bien

Les diagnostics


DPE
Energie non communiquée
GES
Faible émission de GES*
123
Forte émission de GES*
* Gaz à effet de serre en KgeqCO2/m².an

Les informations complémentaires

Maison Solaro 120 m² habitables
Prix de vente honoraires TTC inclus : 410 000 €