En location Bien 1150 m2
| Ville | Le Muy |
| Code postal | 83490 |
| Type de bien | Bien |
| Surface | 1150 m2 |
| Nombre de pièces | |
| Prix | 7 000,00 € |
| Informations sur l'annonceur | |
|---|---|
| Annonce de professionnel |
|
| Agence | Agence Ferran Voir toutes les annonces |
| Adresse | |
| 83300 Draguignan | |
| Téléphone Fixe | 0498106320 |
Description
Dans la zone d'activités au Muy, locaux commerciaux à louer d'une superficie de 1150 m² se composant de deux bâtiments.
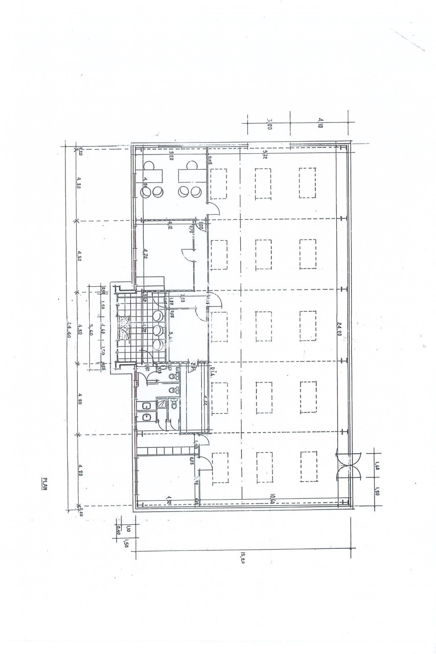
Le bâtiment principal dispose d'une superficie de 720 m² se composant d'un accueil, de 10 bureaux, un espace repas/salle de repos, 2 WC, une réserve et une mezzanine.
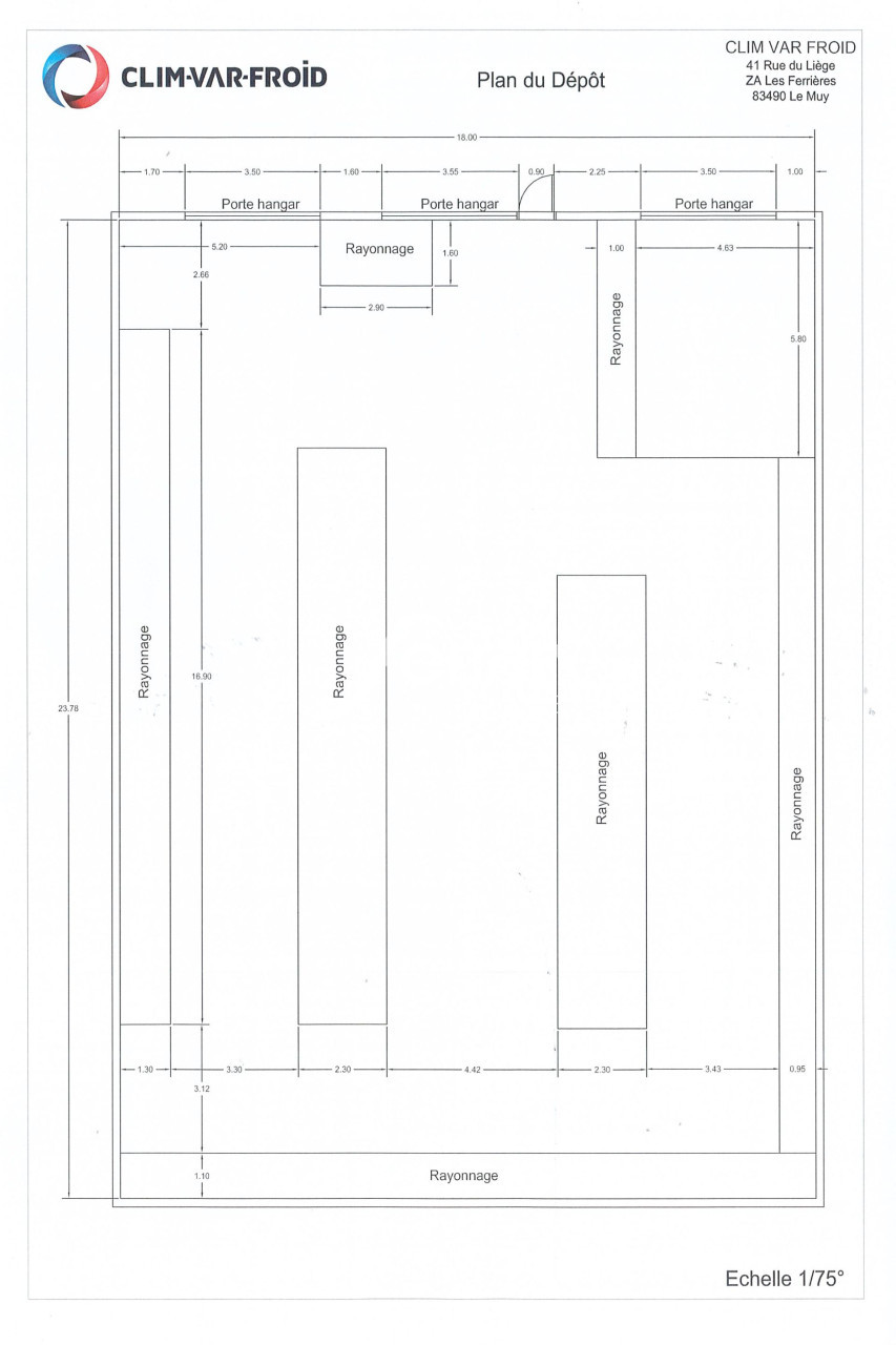
Le bâtiment secondaire (stockage) d'une superficie de 430 m².
L'ensemble est implanté sur un terrain fermé avec plusieurs places de stationnements.
Possibilité de louer séparément les deux bâtiments. Nous contacter.
Loyer HT: 7000¤ - Prov s/charges : Taxe foncière. Dépôt de garantie : 14 000¤ - Honoraires charge locataire : 7000¤ HT-
Les informations sur les risques auxquels ce bien est exposé sont disponibles sur le site Géorisques http://www.georisques.gouv.fr.