En vente Appartement 2 pièces 40 m2
| Ville | Paris |
| Code postal | 75018 |
| Type de bien | Appartement |
| Surface | 40 m2 |
| Nombre de pièces | 2 pièces |
| Prix | 335 000,00 € |
| Informations sur l'annonceur | |
|---|---|
| Annonce de professionnel |
|
| Agence | L'Immobilier par Charly Voir toutes les annonces |
| Adresse | |
| 75018 Paris | |
| Téléphone Fixe | 0176210728 |
| Portable | 0642578973 |
Description
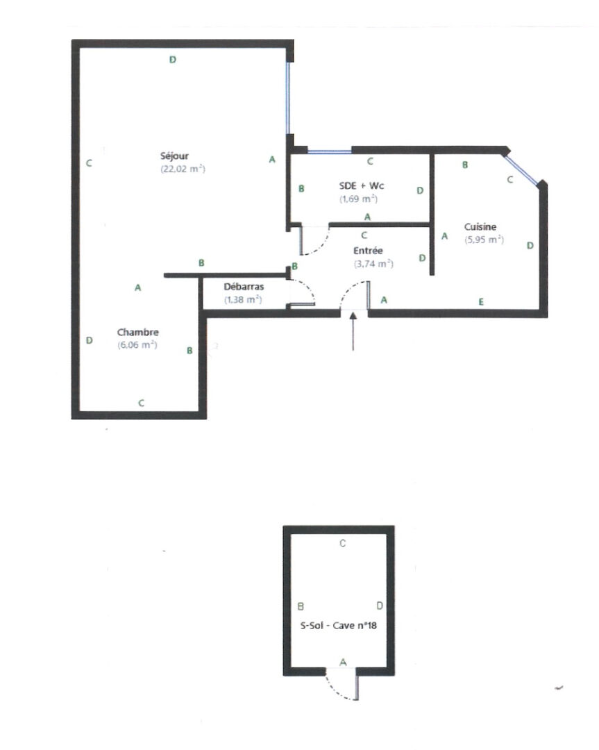
Paris 18ème Marx Dormoy / Rue Marc Séguin A deux pas du charmant marché de l'Olive, au sein d'un bel immeuble de standing des années 1930 avec ascenseur et gardienne, découvrez ce bel appartemententièrement rénové, au calme et lumineux (exposé ouest). D'une superficie de 40,84m², l'appartement séduit dès l'entrée. Il offre un spacieux séjour lumineux avec son balconnet et sa chambre en alcôve, une cuisine indépendante très agréable et totalement équipée et une salle d'eau avec WC et fenêtre. Une cave ainsi qu'un local vélos complètent ce bien Chauffage collectif inclus dans les charges. Aucun travaux à prévoir : vous n'avez plus qu'à poser vos valises. Un véritable cocon, parfaitement situé et prêt à vivre. A visiter sans tarder ! (4.69 % honoraires TTC à la charge de l'acquéreur.) Copropriété de 95 lots - dont 59 lots habitation. (Pas de procédure en cours). Charges annuelles : 2800 euros. Teddy MASCRET (EI) Agent Commercial - Numéro RSAC : - .
Les photos du bien
Les diagnostics
| Bâtiment économe |
|---|
| |
| |
| |
| |
| 252 |
| |
| |
| Bâtiment énergivore |
| en kWh.an/m².an |
| Faible émission de GES* |
|---|
| |
| |
| |
| |
| 54 |
| |
| |
| Forte émission de GES* |
| * Gaz à effet de serre en KgeqCO2/m².an |