En vente Maison 2 pièces

Ville Saint-Macaire
Code postal 33490
Type de bien Maison
Surface
Nombre de pièces 2 pièces
Prix 108 000,00 €
Informations sur l'annonceur
Annonce de professionnel
Nom
Adresse
33490
Téléphone Fixe 0749898825

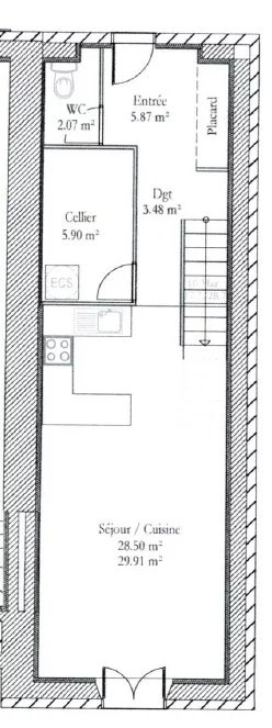
Description

A2Z Agency vous propose : Cette maison nécessite des travaux de second oeuvre, offrant ainsi la liberté de concevoir un intérieur à votre image. Au Rez-de-chaussée, un vaste espace de vie d'environ 50m2 permettant de laisser libre cours à votre imagination : pièce de vie, cuisine ouverte, salon, bureau... Tout est possible. L'étage est prévu pour accueillir deux chambres, une salle d'eau, un WC séparé. Ce bien est idéal pour un projet d'habitation principale, une résidence secondaire, ou encore un investissement locatif après travaux. Les atouts de ce bien : Environnement calme au sein d'un village recherché Belle superficie de 100 m2 environ Présence d'une cour privative, idéale pour créer un espace extérieur agréable Possibilité de repenser entièrement les volumes Pour plus d'informations ou organiser une visite, n'hésitez pas à me contacter ! A2Z Agency, agence immobilière familiale et indépendante à Saint Macaire, à votre service depuis plus de 20 ans ! 4 allée de Tourny 33490 SAINT MACAIRE Laura AYRAL-FLOOD Les informations sur les risques auxquels ce bien est exposé sont disponibles sur le site Géorisques : www.georisques.gouv.fr

Les photos du bien

Les diagnostics


DPE
Bâtiment économe
-2
Bâtiment énergivore
en kWh.an/m².an
GES
Faible émission de GES*
-2
Forte émission de GES*
* Gaz à effet de serre en KgeqCO2/m².an