En vente Appartement 2 pièces 45 m2
| Ville | BRUZ |
| Code postal | 35170 |
| Type de bien | Appartement |
| Surface | 45 m2 |
| Nombre de pièces | 2 pièces |
| Prix | 244 000,00 € |
| Informations sur l'annonceur | |
|---|---|
| Annonce de professionnel |
|
| Agence |
Cabinet Moraine - Cabinet Moraine
Voir toutes les annonces |
| Adresse | 15 rue Henri Lemarié BAT E |
| 35400 Saint-Malo | |
| Téléphone Fixe | 0299324386 |
| Portable | 0612092238 |
Description
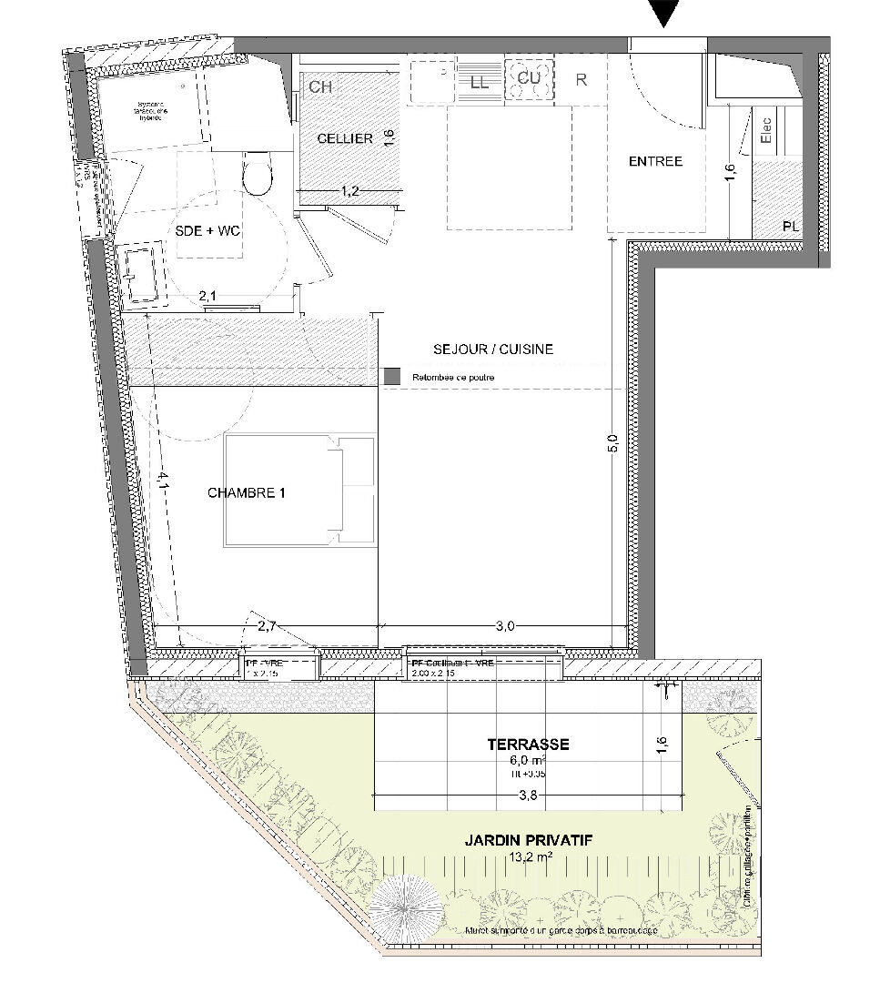
Bruz - Appartement 2 pièces 45.66m² Sud -jardin de 13.25m² - terrasse de 6.04m² - stationnement en sous-sol sécurisé. Frais de notaire offerts A 9 km de Rennes, au coeur d'un secteur recherché pour sa qualité de vie et sa proximité avec l'hyper-centre, découvrez cet appartement 2 pièces. Situé en rez-de-jardin d'une résidence contemporaine RE2020, ce bien allie design moderne, haute performance énergétique et confort de vie optimal. Offrant 45.66 m² parfaitement agencés et une exposition plein Sud, cet appartement séduit par son atmosphère lumineuse et son confort. Il se compose d'une entrée avec placard, d'un séjour lumineux avec cuisine ouverte, donnant accès à une terrasse de 6.04m² et un jardin de 13.25m², idéal pour profiter d'un extérieur ensoleillé. Une chambre agréable, une salle d'eau avec WC, un cellier. Un stationnement sécurisé en sous-sol complètent ce bien. Côté mobilité, l'emplacement est tout simplement exceptionnel : Rennes accessible en seulement 10 minutes grâce à la gare TER de Bruz, Réseau de bus STAR pour des déplacements quotidiens simplifiés, Aéroport Rennes Bretagne à proximité, un véritable atout pour voyager sereinement. Prix promoteur Les informations sur les risques auxquels ce bien est exposé sont disponibles sur le site Géorisques : www.georisques.gouv.fr. Copropriété de 39 lots - dont 17 lots habitation. Charges annuelles : 648 euros.