En vente Maison 4 pièces 78 m2

Ville VILLENEUVE LE ROI
Code postal 94290
Type de bien Maison
Surface 78 m2
Nombre de pièces 4 pièces
Prix 268 000,00 €
Informations sur l'annonceur
Annonce de professionnel
Agence AGENCE LE CHALET - AGENCE LE CHALET
Voir toutes les annonces
Adresse PLACE AMEDEE SOUPAULT
94290 VILLENEUVE LE ROI
Téléphone Fixe 0145974774
Portable

Description

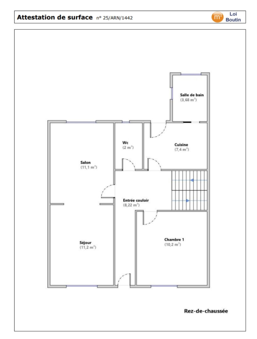
Nous vous proposons un charmant pavillon à fort potentiel, idéalement situé dans le quartier recherché de la Faisanderie, proche des écoles, commerces, bus et à seulement 7 minutes à pied de la gare RER C. Au rez-de-chaussée: une entrée desservant un séjour et salon traversant, ainsi qu'une chambre lumineuse. Une cuisine, une salle d'eau et un WC indépendant complètent ce niveau A l'étage: un palier, une grande chambre, un bureau, et un comble offrant un espace supplémentaire à aménager. Au sous-sol: une chaufferie, un atelier et une cave. Un garage attenant vient compléter ce bien. Des travaux de rénovation sont à prévoir. Les informations sur les risques auxquels ce bien est exposé sont disponibles sur le site Géorisques : www.georisques.gouv.fr Pour plus d'informations ou pour organiser une visite, n'hésitez pas à nous contacter.

Les photos du bien

Les diagnostics


DPE
Bâtiment économe
411
Bâtiment énergivore
en kWh.an/m².an
GES
Faible émission de GES*
114
Forte émission de GES*
* Gaz à effet de serre en KgeqCO2/m².an