En vente Bien 2 pièces 43 m2
| Ville | BOURG LA REINE |
| Code postal | 92340 |
| Type de bien | Bien |
| Surface | 43 m2 |
| Nombre de pièces | 2 pièces |
| Prix | 343 000,00 € |
| Informations sur l'annonceur | |
|---|---|
| Annonce de professionnel |
|
| Agence | Astra Immobilier Voir toutes les annonces |
| Adresse | |
| 92330 SCEAUX | |
| Téléphone Fixe | 0177379982 |
Description
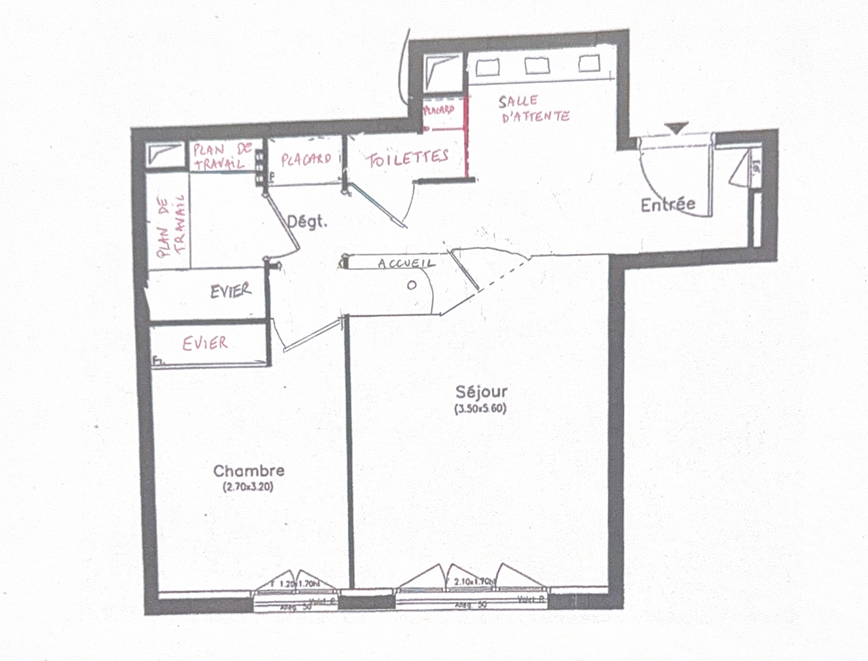
Laissez vous séduire par ce lieu idéal pour développer votre patientèle dans un environnement de qualité: 109 Avenue du Général Leclerc à 300 mètres du RER. LOCAL PROFFESSIONNEL lumineux de 43,m², agencé à ce jour en cabinet dentaire opérationnel. Aucun travaux n'est à prévoir, il est idéal pour une activité médicale et accueillir votre patientèle. Dès l'entrée, vos patients seront accueillis dans une agréable salle d'attente et un espace d'accueil chaleureux, parfaitement optimisés pour offrir confort et fluidité. Une place de parking et une cave sont compris avec le bien. Quartier recherché et dynamique de Bourg-la-Reine, très bien desservi (RER B à 4 mn, bus). Une opportunité rare pour un praticien (dentiste, médecin, kinésithérapeute, orthophoniste, podologue?) souhaitant s'installer immédiatement et sans aucun travaux. Installez vous sans délai et développer votre activité dans les meilleurs conditions. Copropriété de 200 lots (Pas de procédure en cours). Charges annuelles : 1200 euros.
Les photos du bien
Les diagnostics
| Bâtiment économe |
|---|
| |
| |
| 155 |
| |
| |
| |
| |
| Bâtiment énergivore |
| en kWh.an/m².an |
| Faible émission de GES* |
|---|
| 4 |
| |
| |
| |
| |
| |
| |
| Forte émission de GES* |
| * Gaz à effet de serre en KgeqCO2/m².an |