En vente Appartement 3 pièces
| Ville | Andernos-les-Bains |
| Code postal | 33510 |
| Type de bien | Appartement |
| Surface | |
| Nombre de pièces | 3 pièces |
| Prix | 590 000,00 € |
| Informations sur l'annonceur | |
|---|---|
| Annonce de professionnel |
|
| Agence | Silver Coast Int. Realty Voir toutes les annonces |
| Adresse | 182 boulevard de la République |
| 33510 Andernos-les-Bains | |
| Téléphone Fixe | 0556269214 |
Description
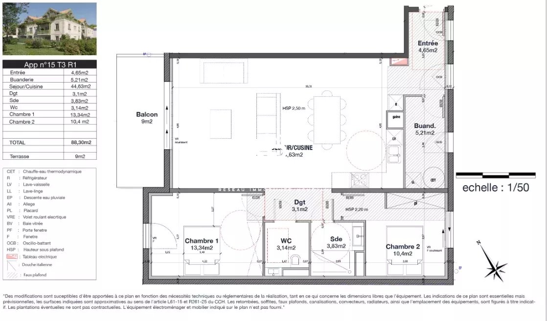
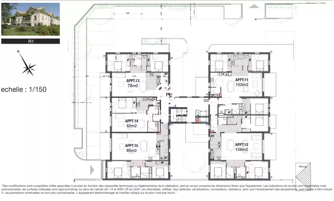
Coldwell Banker Immoba Realty Agence immobilière Andernos-les-Bains vous présente cet appartement, disponible fin 2026. Il propose un séjour/cuisine de 44m² sur un balcon , 2 chambres, une salle d'eau, une toilette séparée, une buanderie et une entrée. 2 places de parking en extérieur sont incluses. Cette résidence de 2 étages est très bien placée, côté Bassin et quartier Betey. Une résidence intimiste composée de seulement 12 appartements du T2 au T4, offrant des prestations de qualité, aux volumes appréciables et lumineux. Si vous souhaitez un autre type d'appartement dans cette résidence, n'hésitez pas à nous contacter. Jardins privatifs - Ascenseur - Parking privatif & Parking à vélos – Accès résidence sécurisé Tous les appartements répondent à la réglementation RE 2020 et sont équipés : - isolation thermique et acoustique renforcée - pompe à chaleur Air Air - volets roulants électriques - entrée sécurisée par visiophone et serrures sécurisées A2P - revêtements de sols de qualité. Deux places de parking sécurisées complètent ce bien. Le prix du bien est de 590 000 € HAI, honoraires d'agence inclus à la charge du vendeur. Frais de notaires réduits. Garanties de la VEFA sur le bien livré : -Garantie de Parfait achèvement (1 an) -Garantie Biennale (2 ans) -Garantie Décennale (10 ans) DPE non applicable. Consultez les risques auxquels ce bien est exposé sur www.géorisques.gouv Pour plus d'informations, veuillez contacter Christine BIANCHI, enregistrée au RSAC sous le numéro 854 067 62, avec une Assurance Responsabilité Civile Professionnelle sous le numéro 60660388. Retrouvez l'ensemble de nos biens sur IMMOBA.