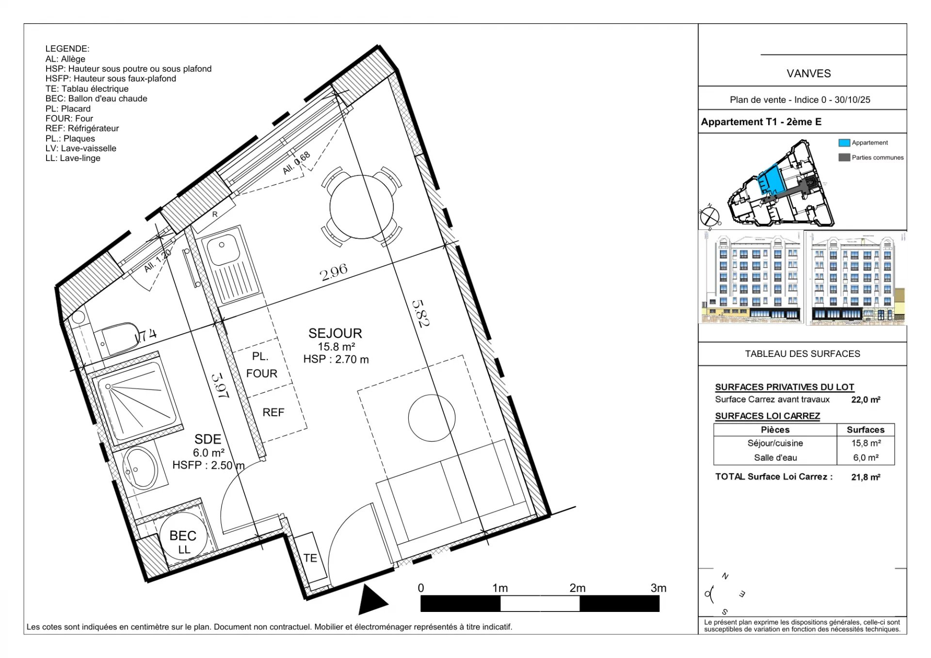
En vente Appartement 1 pièce 23 m2
| Ville | Vanves |
| Code postal | 92170 |
| Type de bien | Appartement |
| Surface | 23 m2 |
| Nombre de pièces | 1 pièce |
| Prix | 177 086,00 € |
| Informations sur l'annonceur | |
|---|---|
| Annonce de professionnel |
|
| Nom | |
| Adresse | |
| 92110 | |
| Téléphone Fixe | 0177371038 |
Description
Idéalement placé au coeur historique de la ville de Vanves. Proche des métros 12, 13 et prochainement la ligne 15 et également a proximité des commerces et des écoles. Ce programme est en réhabilitation, le bien se compose - d'un séjour de 16m2, - d'une salle de bain de 6m2 Pour plus d'information, merci de nous contacter directement.
Les photos du bien
Les diagnostics
DPE
| Bâtiment économe |
|---|
| |
| 107 |
| |
| |
| |
| |
| |
| Bâtiment énergivore |
| en kWh.an/m².an |
GES
| Faible émission de GES* |
|---|
| |
| 7 |
| |
| |
| |
| |
| |
| Forte émission de GES* |
| * Gaz à effet de serre en KgeqCO2/m².an |