En vente Appartement 3 pièces 64 m2
| Ville | BETTON |
| Code postal | 35830 |
| Type de bien | Appartement |
| Surface | 64 m2 |
| Nombre de pièces | 3 pièces |
| Prix | 312 000,00 € |
| Informations sur l'annonceur | |
|---|---|
| Annonce de professionnel |
|
| Agence |
Cabinet Moraine - Cabinet Moraine
Voir toutes les annonces |
| Adresse | 15 rue Henri Lemarié BAT E |
| 35400 Saint-Malo | |
| Téléphone Fixe | 0299324386 |
| Portable | 0612092238 |
Description
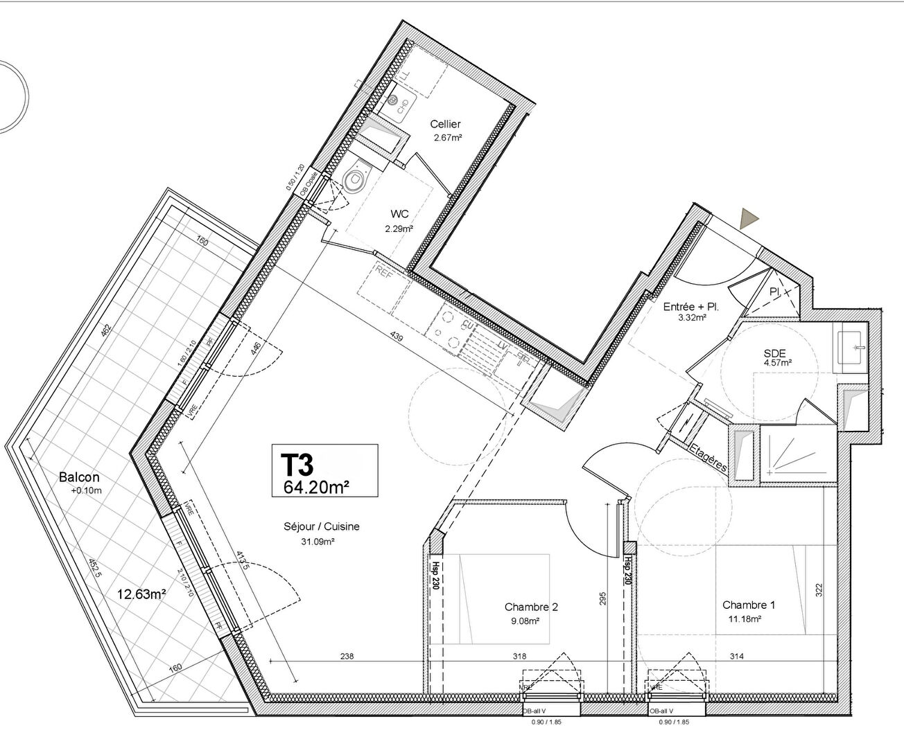
BETTON - Appartement 3 pièces de 64.20m² Sud Ouest- 1er étage - balcon 12.63m² - stationnement en sous-sol sécurisé. A deux pas des commerces, de la gare, des berges du canal et à seulement quelques minutes du marché et des écoles, dans une résidence contemporaine aux normes RT2020. appartement 3 pièces de 64.20m² au 1er étage avec ascenseur comprenant : une entrée avec placard, d'un séjour salon avec cuisine ouverte donnant sur un balcon de 12.63m², deux chambres, placard, d'une salle d'eau, d'un WC indépendant et d'un cellier. Un stationnement en sous-sol sécurisé vient compléter ce bien. Un bon emplacement, des prestations de qualité et un balcon s'ouvrant vers l'extérieur : une opportunité à ne pas manquer. Prix promoteur - frais de notaire réduits. Contactez-nous dès aujourd'hui pour découvrir les appartements disponibles. Les informations sur les risques auxquels ce bien est exposé sont disponibles sur le site Géorisques : www.georisques.gouv.fr. Copropriété de 30 lots - dont 10 lots habitation. Charges annuelles : 921 euros.