En location Appartement 2 pièces 40 m2
| Ville | TOURS |
| Code postal | 37100 |
| Type de bien | Appartement |
| Surface | 40 m2 |
| Nombre de pièces | 2 pièces |
| Prix | 550,00 € |
| Informations sur l'annonceur | |
|---|---|
| Annonce de professionnel |
|
| Agence | ERA IMMOBILIER Tours Centre Voir toutes les annonces |
| Adresse | 59 Avenue de Grammont |
| 37000 TOURS | |
| Téléphone Fixe | 0247051706 |
| Portable | 0624482683 |
Description
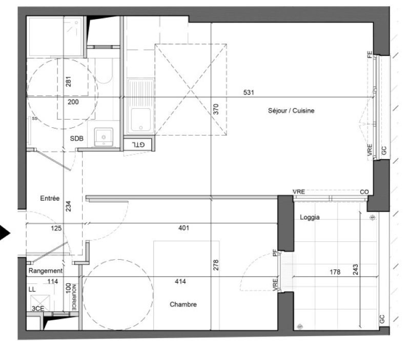
TOURS NORD - CHRIST ROI Dans une résidence neuve, nous vous proposons ce T2 de 40.60m² situé au rez-de-chaussée avec ascenseur. Il se compose d'une entrée avec rangement, d'une pièce de vie avec cuisine donnant sur une loggia, d'une salle d'eau avec WC ainsi que d'une chambre. Chauffage et eau chaude individuel gaz. Entretien parties communes, entretien ascenseur, compris dans les provisions sur charges mensuelles et donnant lieu à une régularisation annuelle. Les honoraires de location TTC (à la charge du locataire) incluent le montant de rédaction des états des lieux facturé pour 121 euros TTC, après réalisation lors de l'entrée dans les lieux.
Les photos du bien
Les diagnostics
DPE
| Bâtiment économe |
|---|
| 63 |
| |
| |
| |
| |
| |
| |
| Bâtiment énergivore |
| en kWh.an/m².an |
GES
| Faible émission de GES* |
|---|
| |
| |
| 13 |
| |
| |
| |
| |
| Forte émission de GES* |
| * Gaz à effet de serre en KgeqCO2/m².an |