En vente Bien 6 pièces 210 m2
| Ville | LA TREMBLADE |
| Code postal | 17390 |
| Type de bien | Bien |
| Surface | 210 m2 |
| Nombre de pièces | 6 pièces |
| Prix | 346 500,00 € |
| Informations sur l'annonceur | |
|---|---|
| Annonce de professionnel |
|
| Agence | Stéphane Plaza Immobilier La Tremblade Voir toutes les annonces |
| Adresse | |
| 17390 La Tremblade | |
| Téléphone Fixe | 0546768872 |
Description
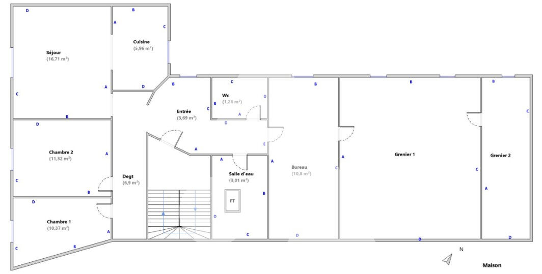
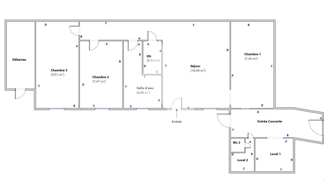
En plein coeur de La Tremblade, immeuble de rapport composé au rdc d'un commerce avec sa réserve et WC. Un appartement T4 d'environ 70m² avec pièce de vie sur cuisine ouverte, deux chambres , bureau et salle d'eau et WC avec sa cour privative. A l'étage un appartement T4 d'environ 70m² avec trois chambres, pièce de vie sur cuisine ouverte, salle d'eau et WC. Un local commercial de 55m² . Le tout actuellement loué. Très bon rapport locatif annuel. Dossier complet en agence. (5.00 % honoraires TTC à la charge de l'acquéreur.) Christophe Henrot (EI) Agent Commercial - Numéro RSAC : 420892770 - SAINTES.
Les photos du bien
Les diagnostics
DPE
| Bâtiment économe |
|---|
| |
| |
| |
| |
| 304 |
| |
| |
| Bâtiment énergivore |
| en kWh.an/m².an |
GES
| Faible émission de GES* |
|---|
| |
| 9 |
| |
| |
| |
| |
| |
| Forte émission de GES* |
| * Gaz à effet de serre en KgeqCO2/m².an |