En vente Appartement 1 pièce 28 m2
| Ville | METABIEF |
| Code postal | 25370 |
| Type de bien | Appartement |
| Surface | 28 m2 |
| Nombre de pièces | 1 pièce |
| Prix | 100 000,00 € |
| Informations sur l'annonceur | |
|---|---|
| Annonce de professionnel |
|
| Agence | IMMO DE FRANCE AGENCE PONTIM Pontarlier Voir toutes les annonces |
| Adresse | 12 RUE DE SALINS |
| 25300 PONTARLIER | |
| Téléphone Fixe | 0381464541 |
| Portable |
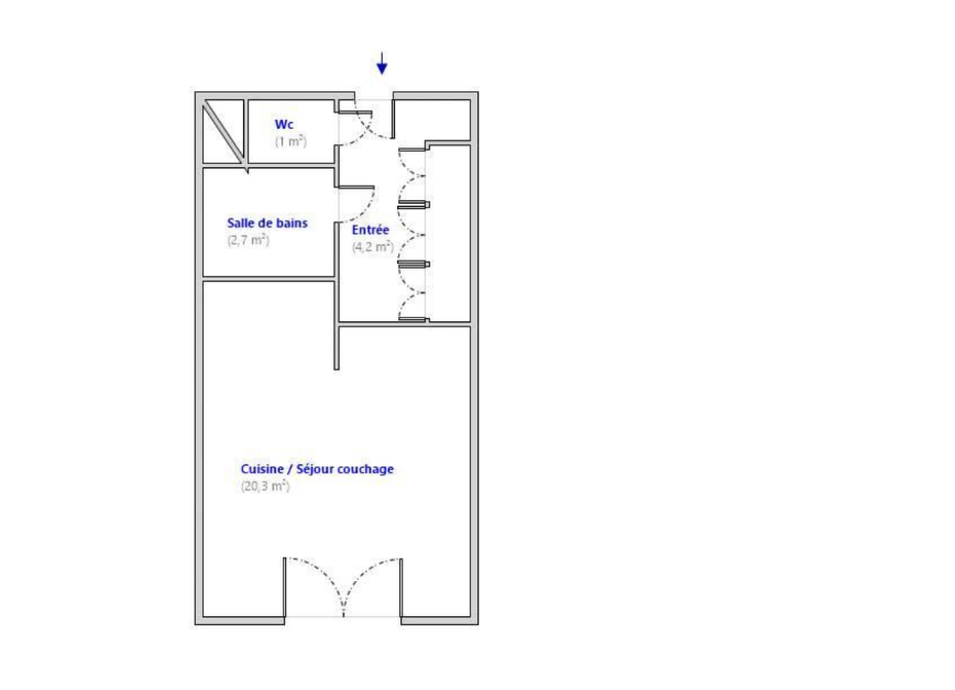
Description
/ EXCLU PONTIM / Métabief, résidence Les Genévriers. Situé au troisième étage avec ascenseur, cet appartement de type T1 se compose d'une entrée, d'une salle de bain, d'un WC, d'une cuisine ouverte sur séjour ouvrant sur un balcon. Une cave en sous-sol complète ce bien. La résidence dispose également d'une piscine intérieure chauffée.
Les photos du bien
Les diagnostics
DPE
| Bâtiment économe |
|---|
| |
| |
| |
| |
| 261 |
| |
| |
| Bâtiment énergivore |
| en kWh.an/m².an |
GES
| Faible émission de GES* |
|---|
| |
| 8 |
| |
| |
| |
| |
| |
| Forte émission de GES* |
| * Gaz à effet de serre en KgeqCO2/m².an |