En vente Maison 6 pièces 200 m2

Ville Les Chères
Code postal 69380
Type de bien Maison
Surface 200 m2
Nombre de pièces 6 pièces
Prix 265 000,00 €
Informations sur l'annonceur
Annonce de professionnel
Agence Valdor L'agence Immobilière Anse
Voir toutes les annonces
Adresse 317 route de Lyon
69480 Anse
Téléphone Fixe 0474070030

Description

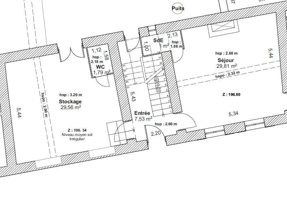
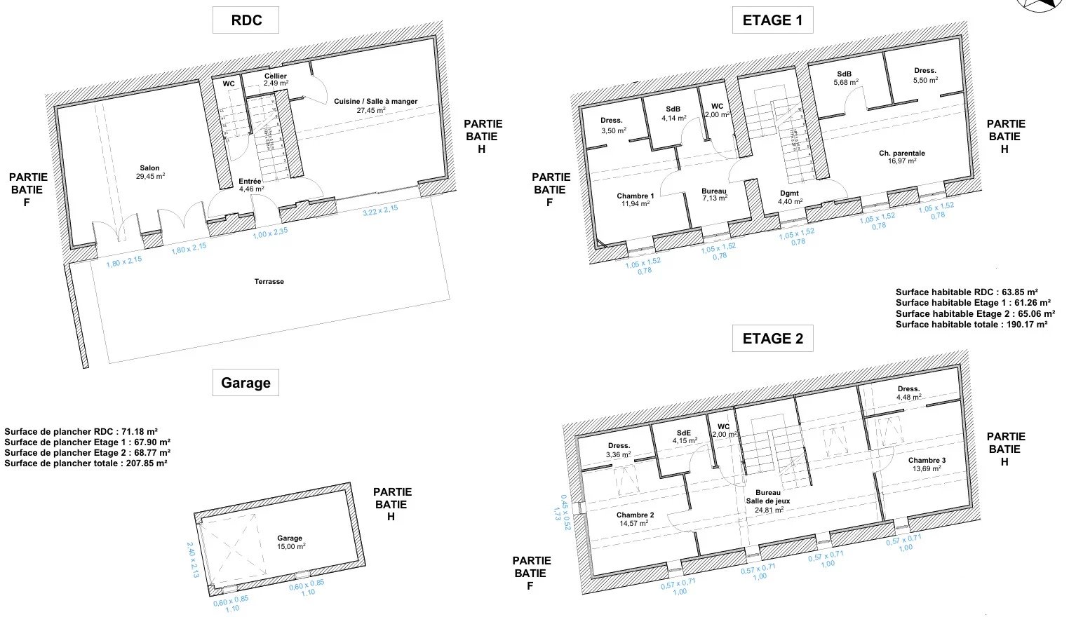
Exclusivité Yannick SAUVIGNET - Entre Chasselay et Anse... Exposition plein sud, environnement champêtre et calme assuré pour votre projet de rénovation dans une ancienne ferme de plus de 200 m² habitables répartis sur 3 niveaux. Jardin privatif arboré sur parcelle plate de 500 m² environ. Accès direct chemin pédestre ou vtt... Vendu avec autorisations administratives obtenues pour l'ensemble des ouvertures à modifier ou à créer. Possibilité d'un accompagnement dans votre projet de rénovation avec un de nos partenaires locaux à la réputation certifiée. A 500 m de l'école et des commodités, 4 km de la gare de Quincieux, 5 km de la gare de St Germain et Anse, 9 km de l'accès A6 Portes de Lyon,15 km de LYON. Pour tous renseignements complémentaires ou visite, et pour bénéficier de conseils pertinents, avec près de 400 biens vendus sur les secteurs rurbains Lyonnais, des Monts d'Or à la Calade, du Val de Saône aux Pierres Dorées, de la Vallée d'Azergues au Beaujolais... Vous pouvez contacter Yannick SAUVIGNET au 06 69 42 69 69, statut salarié, dirigeant. Les informations sur les risques auxquels ce bien est exposé sont disponibles sur le site Géorisques : www.georisques.gouv.fr

Les photos du bien

Les diagnostics


DPE
Energie non communiquée
GES
Faible émission de GES*
358
Forte émission de GES*
* Gaz à effet de serre en KgeqCO2/m².an