En vente Appartement 1 pièce 87 m2
| Ville | Le Mans |
| Code postal | 72000 |
| Type de bien | Appartement |
| Surface | 87 m2 |
| Nombre de pièces | 1 pièce |
| Prix | 199 500,00 € |
| Informations sur l'annonceur | |
|---|---|
| Annonce de professionnel |
|
| Agence | FONTAINE Miguel Voir toutes les annonces |
| Adresse | |
| 72000 Le Mans | |
| Négociateur | FONTAINE IMMOBILIER |
| Téléphone | 02-43-86-04-28 |
Description
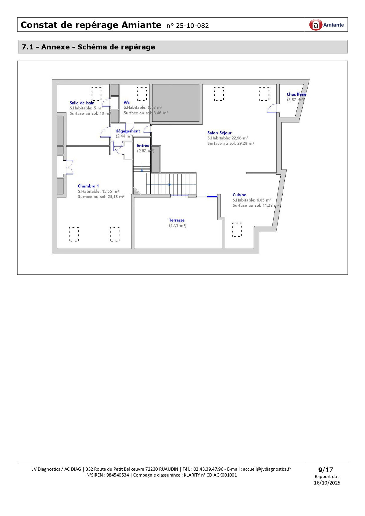
Votre agence Fontaine Immobilier vous propose sur la commune du Mans secteur gare / Palais des congrès (Rue Paul Beldant ). Un appartement au 5ème et dernier étage comprenant : Entrée, cuisine ouverte sur salon, une chambre, salle de bains, wc, chaufferie, cave, garage. Surface totale de l'appartement 87,28 surface Carrez 57,40.Les informations sur les risques auxquels ce bien est exposé sont disponibles sur le site Géorisques : www.georisques.gouv.fr.Informations LOI ALUR : Soumis au régime de copropriété.Quote part annuelle(moyenne) : 1792.44 euros.Honoraires : 5 % TTC charge acquéreur.Prix hors honoraires : 190 000 ¤. (gedeon_23688_32303144)
Les photos du bien
Les diagnostics
DPE
| Bâtiment économe |
|---|
| |
| |
| |
| 188 |
| |
| |
| |
| Bâtiment énergivore |
| en kWh.an/m².an |
GES
| Faible émission de GES* |
|---|
| |
| |
| |
| 37 |
| |
| |
| |
| Forte émission de GES* |
| * Gaz à effet de serre en KgeqCO2/m².an |