Description
RETOUR A LA VENTE LE 12/12/2025:
Quartier Nice Nord - Proche Évêché
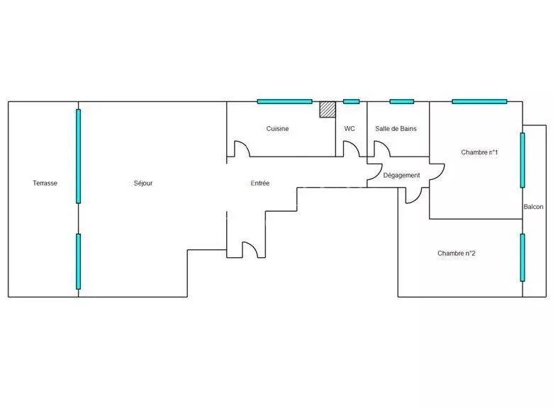
Appartement 3 Pièces - 74 m² - Dernier étage - Vue Dégagée
Situé dans un immeuble moderne très bien entretenu de 1978 avec ascenseur, cet appartement d’angle de 74 m² offre un cadre de vie idéal au sein d'un environnement calme et recherché.
Points forts de l'appartement :
Terrasse plein sud de 19 m² à ciel ouvert, large et profonde, avec vue panoramique sur la ville et la mer.
Appartement traversant (Sud/Nord) avec triple exposition (Sud/Nord/Ouest) garantissant une luminosité optimale.
Balcon supplémentaire de 3,6 m² côté nord, accessible depuis les chambres.
Intérieur à rénover :
Séjour spacieux de 26 m², baigné de lumière grâce à deux grandes baies vitrées (5,4 ml).
Cuisine indépendante de 8 m² pouvant être ouverte sur le séjour.
Deux chambres de 12 m², dont une avec double exposition.
Salle de bain avec fenêtre et WC indépendant avec fenêtre.
Climatisation récente, réversible dans le séjour et présente dans une chambre.
Store banne, volets roulants électriques et sol en marbre.
Double vitrage en aluminium dans toutes les pièces.
Prestations et commodités :
Cave privative.
Grand garage fermé et électrifié de 12,5 m² (2.5 m X 5m) avec 3 m de hauteur sous plafond, manœuvres faciles.
Le garage est en supplément du prix de vente.
Charges: 220€/mois
Chauffage et eau chaude individuels (ballon d'eau chaude récent de 150 L).
Ascenseur large et accessible sans escalier.
Petite copropriété d'une dizaine de copropriétaires, cadre très agréable.
L'immeuble est accessible par une allée très calme.
Proche tramway (quartier Saint-Barthélémy) et bus (ligne 8+) à proximité immédiate
Toutes commodités à proximité.
Cet appartement est idéal pour ceux qui recherchent un bien lumineux, de beaux volumes, une superbe terrasse en ville, un fort potentiel de personnalisation.
Pour plus d'informations ou organiser une visite, contactez nous dès maintenant !