En vente Terrain
| Ville | Taglio-Isolaccio |
| Code postal | 20230 |
| Type de bien | Terrain |
| Surface | |
| Nombre de pièces | |
| Prix | 100 000,00 € |
| Informations sur l'annonceur | |
|---|---|
| Annonce de professionnel |
|
| Nom | |
| Adresse | |
| 20215 | |
| Portable | 0622413833 |
Description
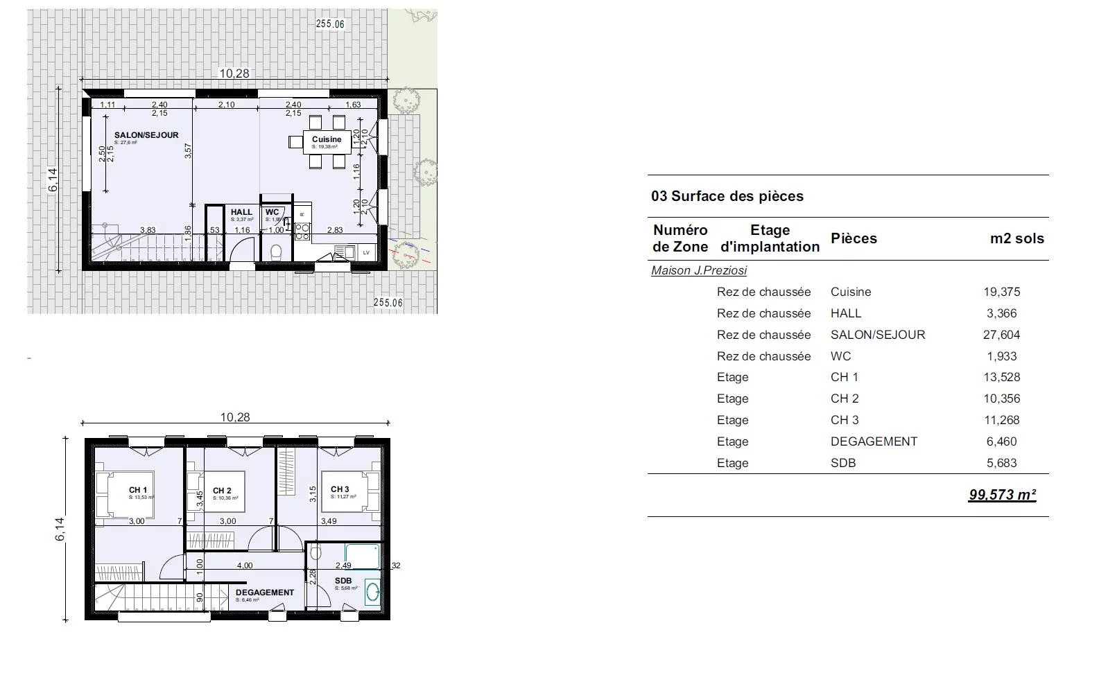
TAGLIO-ISOLACCIO, En plein cœur du village et à seulement 5 minutes de toutes les commodités, terrain de 662m² avec permis accordé et purgé pour un maison de 100m² avec une superbe vue dégagée sur les montagnes et la mer. Le projet allie la modernité avec le caractère de l'ancien pour s'adapter à l'environnement. A visiter sans tarder.
Les photos du bien
Les diagnostics
DPE
| Energie non communiquée |
|---|
GES
| GES non communiqué |
|---|