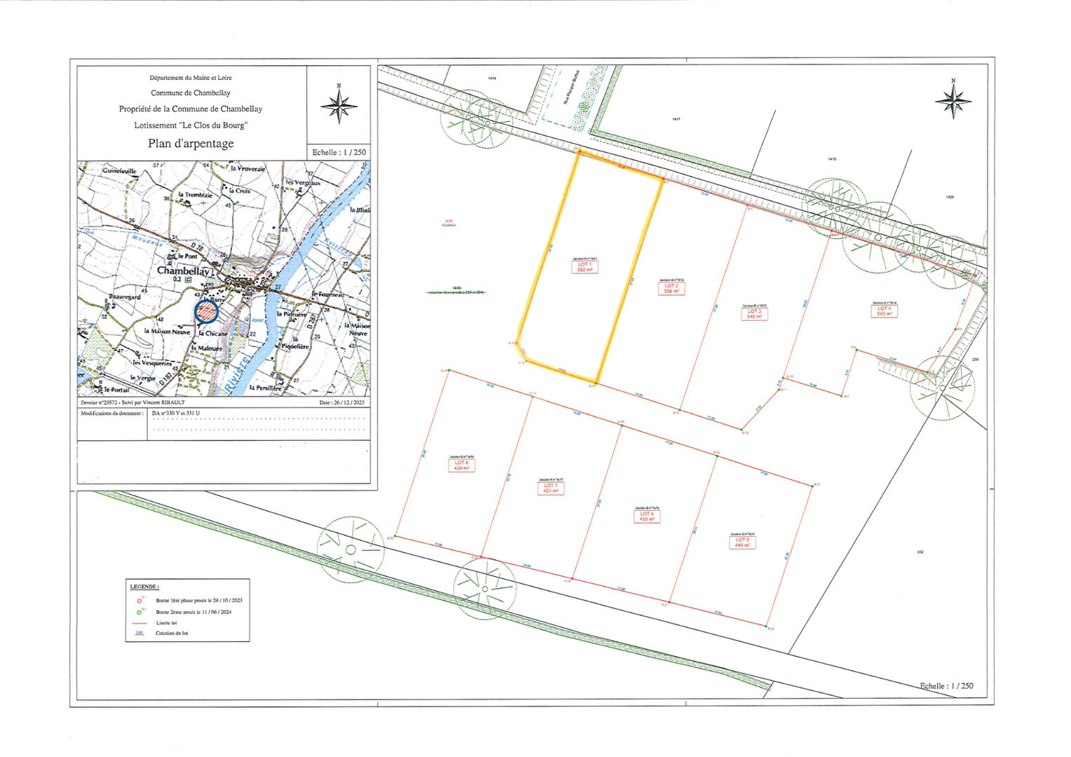
En vente Terrain 552 m2

Ville CHAMBELLAY
Code postal 49220
Type de bien Terrain
Surface 552 m2
Nombre de pièces
Prix 60 202,00 €
Informations sur l'annonceur
Annonce de professionnel
Agence L'ADRESSE 49 - L'ADRESSE LE LION D'ANGERS
Voir toutes les annonces
Adresse 8, rue du Général Leclerc
49220 LE LION D'ANGERS
Téléphone Fixe 0241951717

Description

Dans une charmante commune bordée par la Mayenne, à seulement 10 minutes du Lion d'Angers, profitez de cette belle opportunité : Terrain de 552 m² situé dans un petit lotissement calme et agréable. Libre de constructeu et Terrain viabilisé. Idéal pour concrétiser votre projet de construction. Ref: 36600 | Nous soumis au DPE Prix : 60 202.21 euros HAI Honoraires à charge acquéreur (9.06 % honoraires TTC à la charge de l'acquéreur.)

Les photos du bien

Les diagnostics


DPE
Energie non communiquée
GES
GES non communiqué