En vente Terrain 1502 m2
| Ville | Embrun |
| Code postal | 05200 |
| Type de bien | Terrain |
| Surface | 1502 m2 |
| Nombre de pièces | |
| Prix | 320 000,00 € |
| Informations sur l'annonceur | |
|---|---|
| Annonce de professionnel |
|
| Agence | Square Habitat Embrun Voir toutes les annonces |
| Adresse | 24 Boulevard Pasteur |
| 05200 EMBRUN |
Description
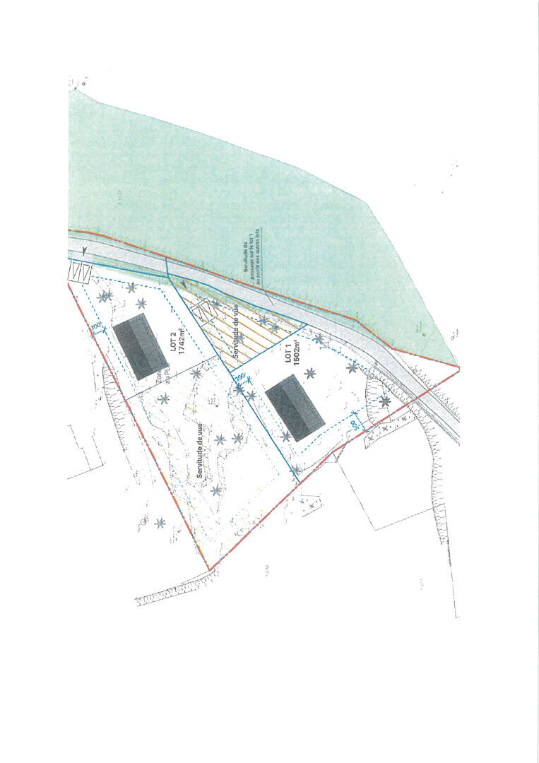
Votre Havre de Paix avec Vue Lac.
À seulement 2 minutes du coeur d'Embrun, découvrez ce magnifique terrain plat et entièrement viabilisé, lot n°1 d'un nouveau lotissement intimiste de 5 parcelles. Imaginez votre future maison baignée de lumière grâce à une exposition optimale et offrant une charmante vue sur le lac de Serre-Ponçon. Profitez d'un environnement calme et verdoyant, tout en ayant l'accès facile aux commodités et aux plaisirs nautiques. Chaque parcelle a été conçue pour garantir votre tranquillité, avec de beaux espaces arborés préservant votre intimité. Ne manquez pas cette opportunité unique de construire votre rêve à Embrun ! Contactez-moi pour plus d'informations.
.Informations LOI ALUR : Honoraires charge vendeur. (gedeon_41060_31198455)
Les photos du bien
Les diagnostics
Les informations complémentaires
Terrain 1502 m² à Embrun