En location Boutique

Ville Auch
Code postal 32000
Type de bien Boutique
Surface
Nombre de pièces
Prix 1 224,00 €
Informations sur l'annonceur
Annonce de professionnel
Nom
Adresse
32000
Portable 0677846279

Description

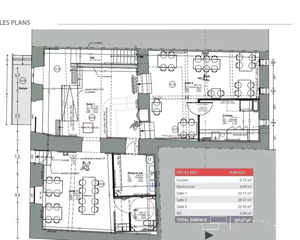
Venez découvrir ce grand local en basse ville auscitaine d'une superficie de 135,97 m2 avec sa mezzanine de 29,84 m2. Il se compose de 3 salles spacieuses, d'un espace réserve bar ainsi qu'un coin cuisine. Donc si vous êtes à la recherche d'un local commercial mettant à disposition un espace polyvalent pouvant répondre à vos besoins, n'hésitez plus et contactez votre agence locale Gabriel Art Immobilier. DISPONIBLE POUR MAI 2025 A découvrir chez Gabriel Art Immobilier. 0744569012 Loyer hors charges HT : 1019€/mois soit 1224 euros TTC Charges générales : 59 euros (Entretien des communs + TEOM) Honoraires locataire : 1019€ HT Dépôt de garantie : 1019€

Les photos du bien

Les diagnostics


DPE
Energie non communiquée
GES
GES non communiqué