En vente Maison 7 pièces 664 m2
| Ville | Castres |
| Code postal | 81100 |
| Type de bien | Maison |
| Surface | 664 m2 |
| Nombre de pièces | 7 pièces |
| Prix | 250 000,00 € |
| Informations sur l'annonceur | |
|---|---|
| Annonce de professionnel |
|
| Nom | |
| Adresse | |
| 81100 | |
| Portable | 0624213338 |
Description
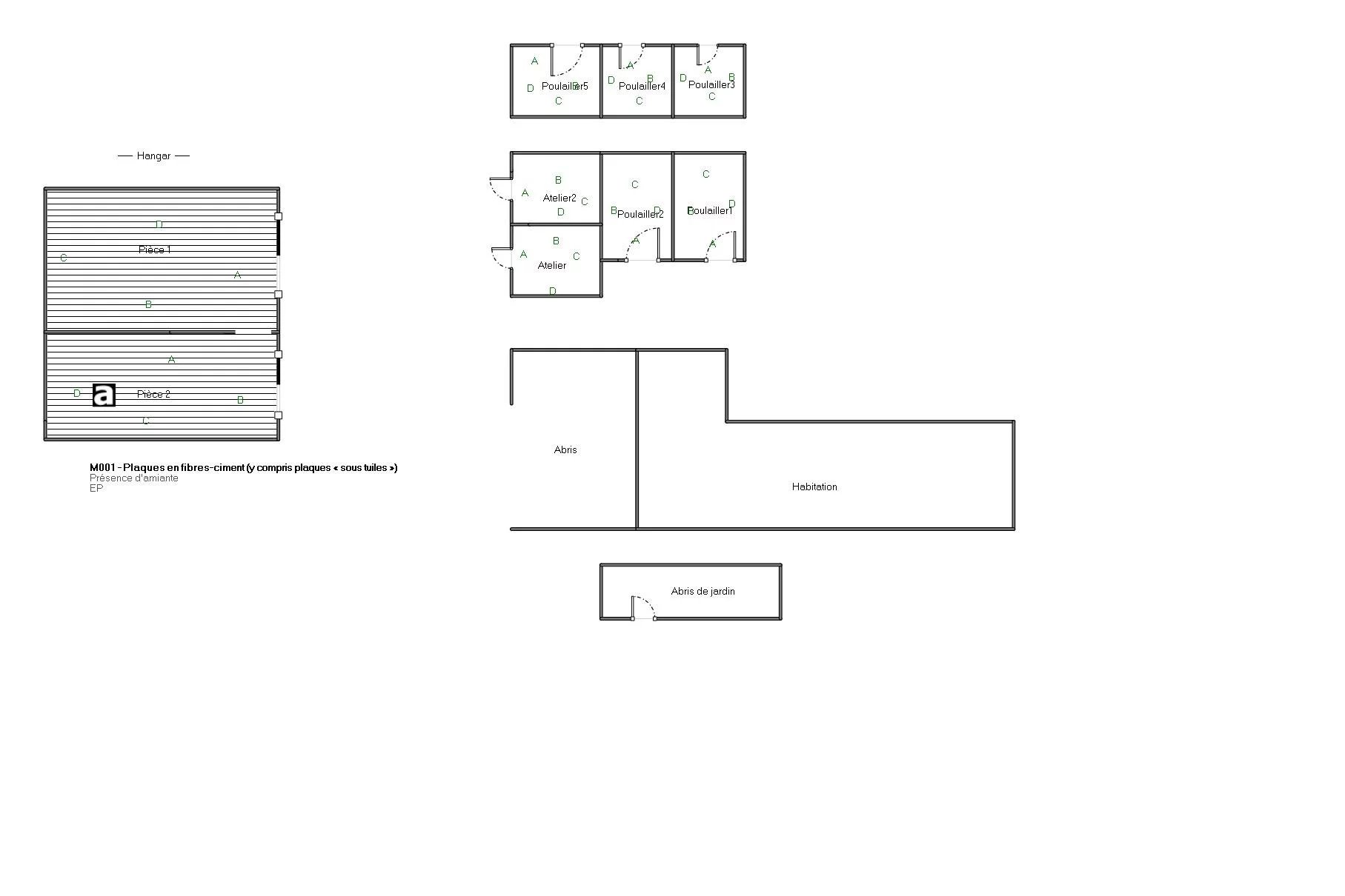
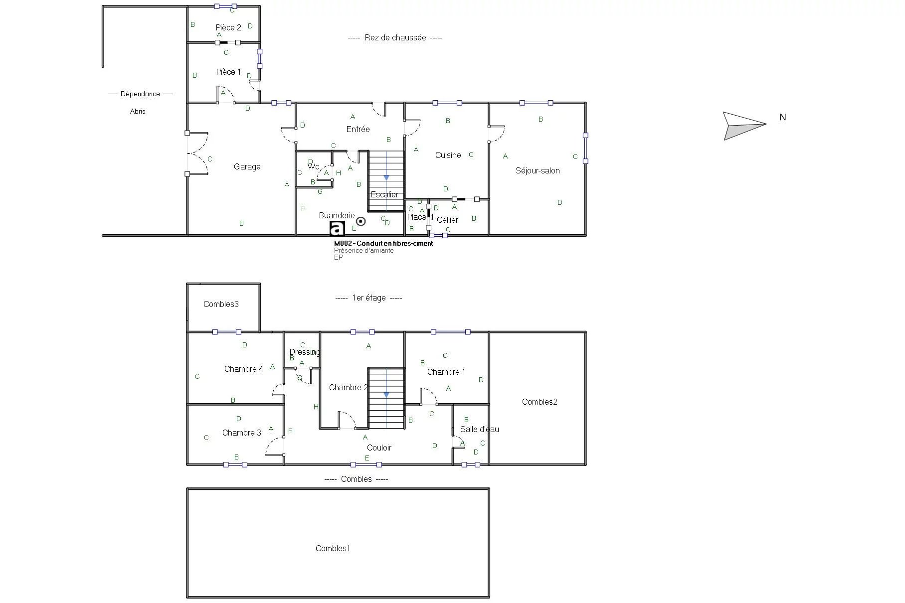
EXCLUSIVITÉ – Secteur Lambert – Ancienne Ferme + grandes dépendances sur environ 4500 m² de Terrain en partie arboré. PACFA Immobilier vous propose en exclusivité cette ancienne ferme avec du caractère d’environ 140 m² habitables avec cuisine indépendante, 4 chambres, cuisine d’été, cave. Dépendances rares sur le secteur : hangar de 400 m², préau ouvert de 100 m², 2 garages. Très beau terrain arboré dominant avec une belle vue sur Castres et un environnement remarquablement calme à proximité de commerces et services. Potentiel multiple : familial, artisan, stockage, projet de valorisation. Visite virtuelle disponible sur notre site
Les photos du bien
Les diagnostics
DPE
| Energie non communiquée |
|---|
GES
| Faible émission de GES* |
|---|
| |
| |
| |
| |
| |
| |
| 261 |
| Forte émission de GES* |
| * Gaz à effet de serre en KgeqCO2/m².an |