En vente Immeuble 17 pièces 448 m2

Ville Halanzy
Pays Belgique
Type de bien Immeuble
Surface 448 m2
Nombre de pièces 17 pièces
Prix 250 000,00 €
Informations sur l'annonceur
Annonce de professionnel
Nom
Adresse
29680
Téléphone Fixe +352621251398

Description

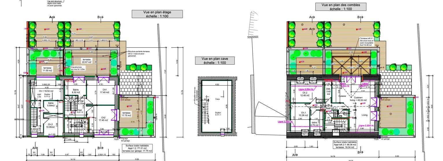
Projet immobilier de rénovation et extension – Halanzy Transformation d’une fermette en 3 appartements haut standing – PEB A Situé au cœur du village d’Halanzy, ce projet immobilier de qualité allie charme de l’ancien, architecture contemporaine et haute performance énergétique. Implanté sur une parcelle de 9a72ca, il prévoit la transformation complète d’une fermette en trois appartements spacieux, lumineux et durables proche de la gare Halanzy. Le projet comprend : • Un duplex de 80,69 m² avec terrasses de 11 m² et 14,67 m² • Un appartement de 105 m² avec plusieurs terrasses totalisant plus de 90 m² • Un appartement loft de 68,38 m² avec terrasse de 16,48 m² Chaque logement bénéficie de terrasses privatives, d’un jardin commun aménagé, d’un garage ou carport, ainsi que d’équipements modernes : pompe à chaleur, panneaux photovoltaïques et PEB A garantissant une consommation énergétique réduite. Le projet intègre une reprise structurelle complète avec création de nouvelles fondations sur l’ensemble de la propriété, assurant une stabilité durable et une conformité totale aux normes constructives actuelles. Une possibilité de démolition partielle ou totale est étudiée, permettant d’augmenter la capacité ou le nombre d’unités selon les objectifs de l’investisseur. Plans validés et conformes aux prescriptions urbanistiques. Projet entièrement étudié, prêt à construire. Plus d’infos : www.fcimmo.lu – +352 621 251 398

Les photos du bien

Les diagnostics


DPE
Bâtiment économe
275
Bâtiment énergivore
en kWh.an/m².an
GES
GES non communiqué