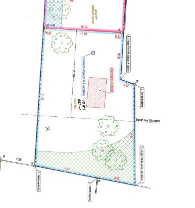
En vente Terrain 687 m2
| Ville | La Chapelle-Saint-Mesmin |
| Code postal | 45380 |
| Type de bien | Terrain |
| Surface | 687 m2 |
| Nombre de pièces | |
| Prix | 109 900,00 € |
| Informations sur l'annonceur | |
|---|---|
| Annonce de professionnel |
|
| Agence | SUCCESS IMMO Voir toutes les annonces |
| Adresse | 129 rue Saint Marceau |
| 45100 Orléans | |
| Téléphone Fixe | 0238223273 |
Description
Terrain à bâtir à vendre - 687 m2 au calme Venez découvrir ce magnifique terrain à bâtir de 687 m2, situé en second rang, au calme, et offrant un accès privé via un chemin d'accès. Ce terrain est hors lotissement et libre constructeur, vous offrant ainsi une grande liberté pour réaliser votre projet immobilier.
Caractéristiques principales :
Surface totale : 687 m2 (hors chemin d'accès)
Façade : 22 m
Emprise au sol : supérieure à 200 m2
Surface de pleine terre : 60 % à laisser intacte
Construction possible jusqu'à 9 m au faîtage et 6 m à l'égout de toit
Exposition sud en façade arrière
Ce terrain vous permet de construire une belle maison familiale ou même deux petites maisons, selon vos besoins. Avec la possibilité de construire un étage 'droit', vous bénéficierez d'un beau potentiel d'aménagement, tout en respectant les normes d'urbanisme.
Situation idéale : Idéalement situé, il bénéficie d'un cadre calme tout en étant à proximité de toutes les commodités. La ligne de bus 51 est à quelques mètres à pied, et la gare SNCF toute proche vous permet de rejoindre le centre d'Orléans en seulement 8 minutes.
Ce terrain est une opportunité rare pour réaliser le projet de vos rêves dans un secteur prisé. Ne laissez pas passer cette chance de bâtir votre future maison dans un environnement agréable et accessible.
Pour plus d'informations ou pour organiser une visite, contactez-nous !
Les photos du bien
Les diagnostics
Les informations complémentaires
terrain hors lotissement de 687 m2
Prix de vente honoraires TTC inclus : 102 000 €