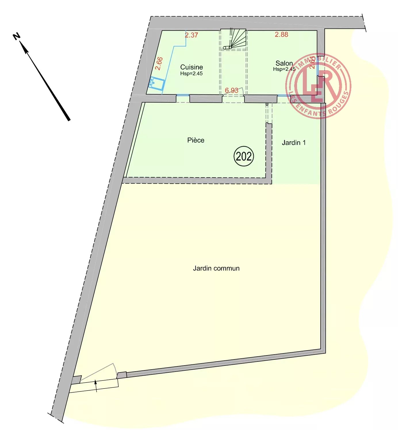
Description
Au cœur du quartier Arsenal, proche de l’Île-Saint-Louis, de Bastille et du Marais Historique (Saint-Paul/Place des Vosges à 10/12 minutes à pied) dans une copropriété fin 19ème donnant sur un jardin en jouissance exclusive, maison contemporaine rénovée par architectes, d’une surface de 50,80m2 (loi Carrez) composé au rez-de-chaussée (légèrement surélevé) d’une réception baignée de lumière exposée Sud/Ouest, une cuisine aménagée, un espace bureau ou petite chambre. À l’étage, une chambre d'enfant, une salle d’eau avec douche et toilettes, des rangements optimisés sur mesure et deux caves.
Une rénovation récente optimise astucieusement l’espace en mettant en valeur la lumière accessible par des puits de lumière et de larges baies vitrées.
Prestations : ultra calme, aucuns travaux à prévoir, rénovation de qualité
Libération des lieux Début juillet 2026
Exceptionnel et rare
Les informations sur les risques auxquels ce bien est exposé sont disponibles sur le site Géorisques : www.georisques.gouv.fr
Agent commercial immatriculé au Registre spécial des agents commerciaux du greffe du tribunal de commerce de PARIS, sous le numéro 483 083 077