En vente Appartement 2 pièces 19 m2

Ville PARIS
Code postal 75020
Type de bien Appartement
Surface 19 m2
Nombre de pièces 2 pièces
Prix 190 000,00 €
Informations sur l'annonceur
Annonce de professionnel
Agence l'Adresse Voltaire
Voir toutes les annonces
Adresse
75011 Paris
Téléphone Fixe 0140095290

Description

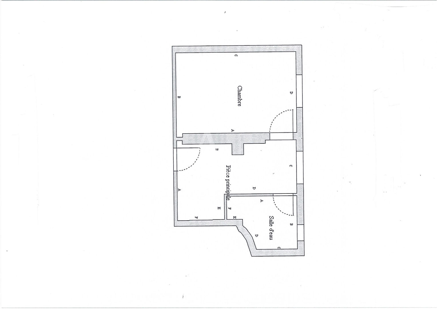
Charme et luminosité à Ménilmontant ? Deux-pièces au dernier étage Idéalement situé à proximité immédiate du métro Ménilmontant, au coeur d'un quartier parisien vivant et recherché, cet appartement deux-pièces se trouve au 5ème et dernier étage d'un immeuble ancien bien entretenu (sans ascenseur). D'une surface de 19,02 m² Carrez, le bien offre un agencement optimisé comprenant : un séjour lumineux avec cuisine ouverte, une chambre exposée plein sud, une salle d'eau avec WC. La belle luminosité, l'exposition favorable et la distribution fonctionnelle confèrent à cet appartement un véritable potentiel de valorisation. Des travaux de remise en état sont à prévoir et permettront de repenser l'espace afin d'en révéler pleinement le charme. Dans une optique d'amélioration de la performance énergétique, l'installation de fenêtres en double vitrage à isolation renforcée ainsi que d'une VMC hygroréglable de type A est notamment recommandée. Implanté dans une rue prisée, à deux pas des commerces, transports et commodités, ce bien constitue une opportunité rare sur le secteur. Il conviendra parfaitement pour un premier achat, un pied-à-terre parisien ou un investissement locatif. DPE : Classe G ? 626 kWh/m²/an. Un appartement plein de caractère, niché dans un environnement dynamique, qui séduira les amateurs d'authenticité et de vie de quartier parisienne. Copropriété de 58 lots (Pas de procédure en cours). Charges annuelles : 786 euros.

Les photos du bien

Les diagnostics