En vente Appartement 4 pièces

Ville Morzine
Code postal 74110
Type de bien Appartement
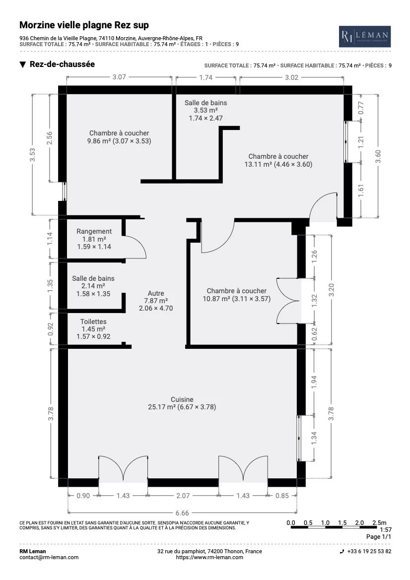
Surface
Nombre de pièces 4 pièces
Prix 740 000,00 €
Informations sur l'annonceur
Annonce de professionnel
Nom
Adresse
74260
Téléphone Fixe 0450791309

Description

Magnifique Appartement de 3 chambres intégralement rénové - Centre de Morzine Opportunité Unique au Cœur de Morzine ! Découvrez ce spacieux appartement de 75m2, idéalement situé à proximité du centre de Morzine, offrant un accès facile à toutes les commodités, aux remontées mécaniques et à l'ambiance dynamique de la station. Faisant partie d'un chalet de caractère récemment divisé en trois appartements (un logement par niveau) et intégralement rénové, cette propriété combine le charme montagnard avec le confort du moderne. Caractéristiques Principales : Emplacement Premium : Centre de Morzine, à proximité des commerces, restaurants, bars et accès aux pistes. Cadre Authentique : Intégré à un chalet divisé, offrant le charme de l'architecture locale. Potentiel : Idéal pour résidence principale, secondaire ou investissement locatif saisonnier. Economies : Très faibles charges de copropriété et d'énergies : DPE C ! L'appartement a été intégralement rénové avec des matériaux de qualité. Le chalet en lui même a également été intégralement rénové (isolation thermique extérieure, portes et fenêtres, création d'un carport, ...). Pour plus d'informations, n'hésitez pas à nous contacter à Morzine Immo. Les risques géographiques naturels auxquels la propriété est exposée peuvent être consultés sur le site web www.georisques.gouv.fr.

Les photos du bien

Les diagnostics


DPE
Bâtiment économe
163
Bâtiment énergivore
en kWh.an/m².an
GES
Faible émission de GES*
5
Forte émission de GES*
* Gaz à effet de serre en KgeqCO2/m².an