En vente Terrain
| Ville | Bouin |
| Code postal | 85230 |
| Type de bien | Terrain |
| Surface | |
| Nombre de pièces | |
| Prix | 69 999,00 € |
| Informations sur l'annonceur | |
|---|---|
| Annonce de professionnel |
|
| Agence | SAS BOUIN IMMOBILIER Voir toutes les annonces |
| Adresse | 11 Place des Trois Baronets |
| 85710 Bois-de-Céné | |
| Téléphone Fixe | 0228106305 |
Description
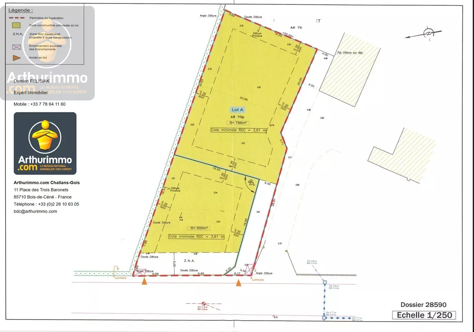
Terrain constructible de 786 m², en partie clos et sans vis à vis, libre de constructeur (lot A). À viabiliser ; les réseaux (eau, électricité, assainissement) sont proches, facilitant les travaux de raccordement. Plan du lot disponible en annexe. 20m de façade et l'etude de sol ne révèle pas de surcoût sur la constrcution (rare pour le secteur). Honoraires à la charge du vendeur. Lien georisques : https://www.georisques.gouv.fr/Contactez-nous pour plus d'informations techniques, la consultation du plan et l'organisation d'une visite.