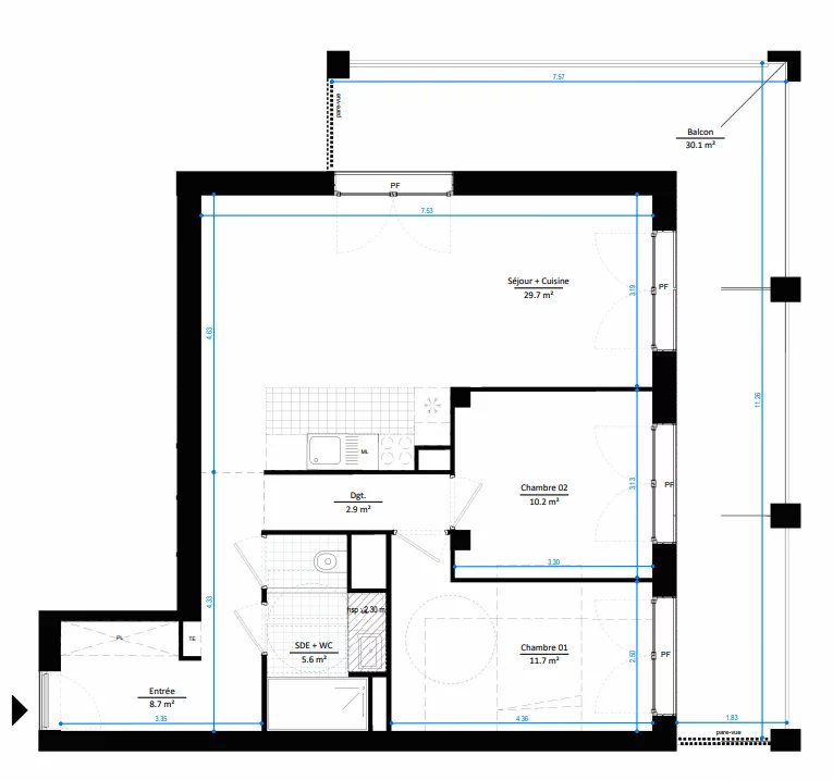
En vente Appartement 3 pièces 93 m2
| Ville | Gennevilliers |
| Code postal | 92230 |
| Type de bien | Appartement |
| Surface | 93 m2 |
| Nombre de pièces | 3 pièces |
| Prix | 345 512,00 € |
| Informations sur l'annonceur | |
|---|---|
| Annonce de professionnel |
|
| Nom | |
| Adresse | |
| 92110 | |
| Téléphone Fixe | 0177371038 |
Description
Idéalement placé, proche des commerces, écoles, et transports. Ce bien, se compose : - d'une entrée, - de deux chambres de 10 et 11m2 - d'une salle de bain, - d'un séjour/cuisine de plus de 29m2 - et d'un grand balcon de 30m2 Pour plus d'information, merci de nous contacter.
Les photos du bien
Les diagnostics
DPE
| Bâtiment économe |
|---|
| |
| 107 |
| |
| |
| |
| |
| |
| Bâtiment énergivore |
| en kWh.an/m².an |
GES
| Faible émission de GES* |
|---|
| |
| 7 |
| |
| |
| |
| |
| |
| Forte émission de GES* |
| * Gaz à effet de serre en KgeqCO2/m².an |