En vente Appartement 2 pièces 57 m2
| Ville | Clichy |
| Code postal | 92110 |
| Type de bien | Appartement |
| Surface | 57 m2 |
| Nombre de pièces | 2 pièces |
| Prix | 300 000,00 € |
| Informations sur l'annonceur | |
|---|---|
| Annonce de professionnel |
|
| Nom | |
| Adresse | |
| 92110 | |
| Téléphone Fixe | 0177371038 |
Description
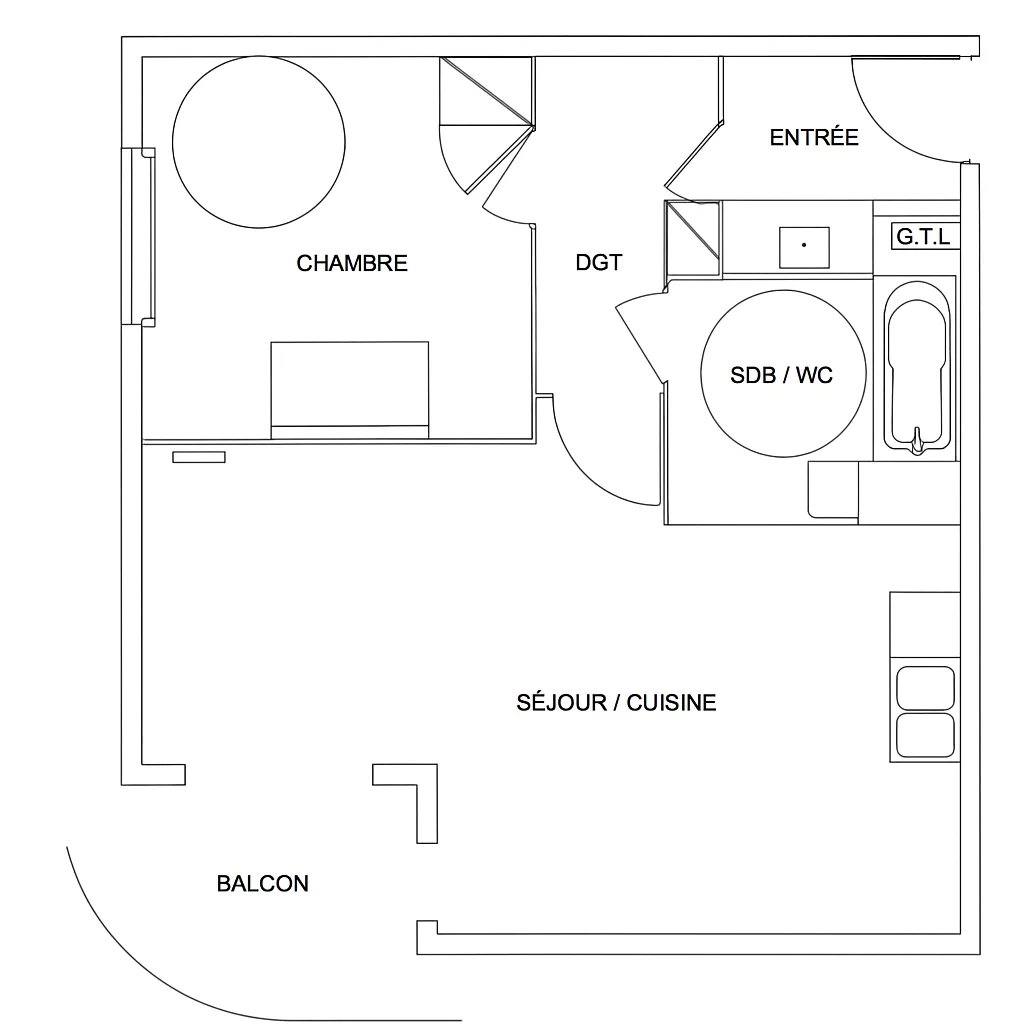
Bien idéalement placé au coeur de Clichy, à proximité des transports et commerces. A seulement 200 mètres de Paris 17ème. Ce bien en nue propriété se compose : - d'une entrée, - d'un séjour/cuisine de 25m2, - d'une belle chambre de 11m2, - d'une salle de bains, - et d'un balcon de plus de 8m2. Pour plus d'information, merci de nous contacter directement.
Les photos du bien
Les diagnostics
DPE
| Bâtiment économe |
|---|
| |
| 107 |
| |
| |
| |
| |
| |
| Bâtiment énergivore |
| en kWh.an/m².an |
GES
| Faible émission de GES* |
|---|
| |
| 7 |
| |
| |
| |
| |
| |
| Forte émission de GES* |
| * Gaz à effet de serre en KgeqCO2/m².an |