En vente Appartement 2 pièces
| Ville | Montreuil |
| Code postal | 93100 |
| Type de bien | Appartement |
| Surface | |
| Nombre de pièces | 2 pièces |
| Prix | 336 000,00 € |
| Informations sur l'annonceur | |
|---|---|
| Annonce de professionnel |
|
| Agence | Les Enfants Rouges Voir toutes les annonces |
| Adresse | 30 rue Saint-Placide |
| 75006 Paris 6ème | |
| Téléphone Fixe | 0143353389 |
Description
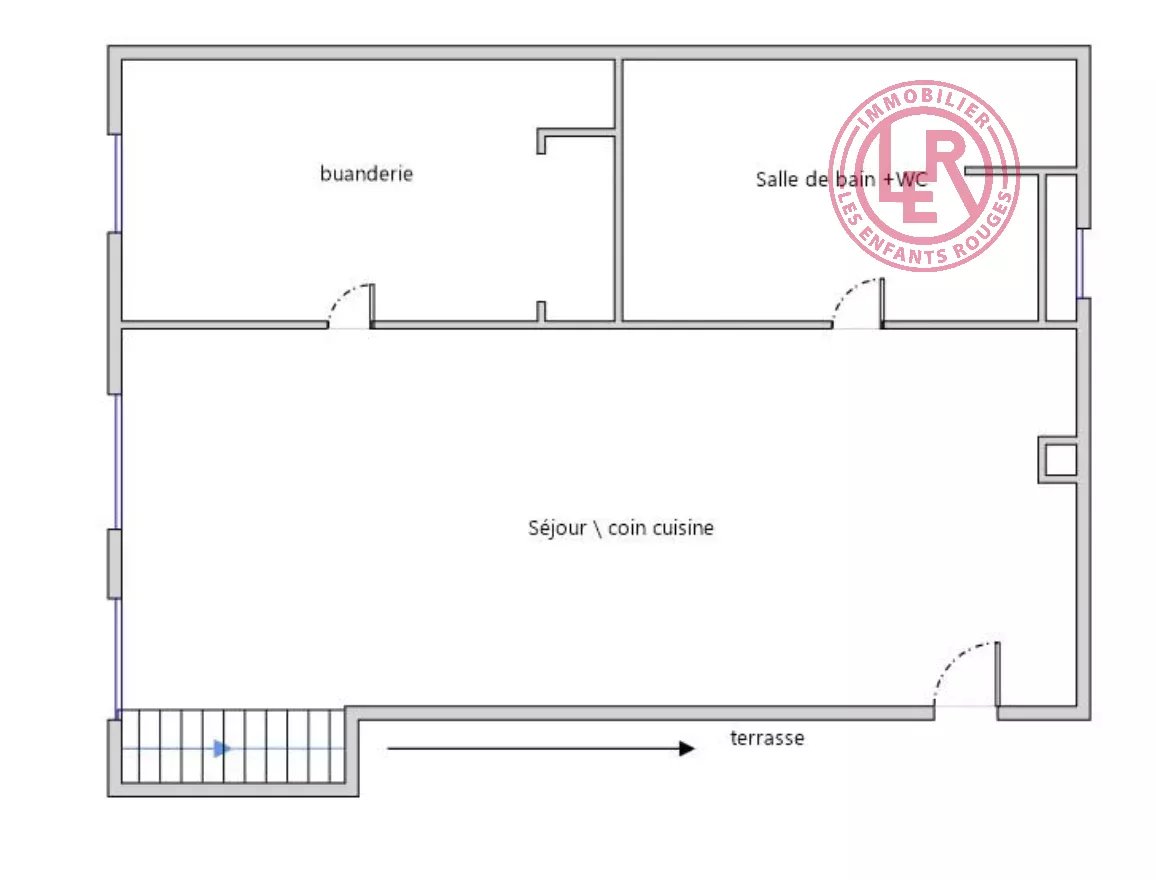
Dans un voie privée au calme, un appartement sans vis-à-vis de 31,49m2 Carrez au deuxième et dernier étage d'une petite maison, avec un toit terrasse privatif de 32,60m2 Carrez avec une vue dégagée à 360°. Il est composé d'un grand salon avec une cuisine américaine, une chambre, une salle de bains avec toilettes, un escalier pour accéder au toit-terrasse privatif. Un cave complète ce bien. Les informations sur les risques auxquels ce bien est exposé sont disponibles sur le site Géorisques : www.georisques.gouv.fr
Les photos du bien
Les diagnostics
DPE
| Bâtiment économe |
|---|
| |
| |
| |
| |
| 328 |
| |
| |
| Bâtiment énergivore |
| en kWh.an/m².an |
GES
| Faible émission de GES* |
|---|
| |
| |
| |
| |
| |
| |
| 154 |
| Forte émission de GES* |
| * Gaz à effet de serre en KgeqCO2/m².an |