En vente Appartement 2 pièces
| Ville | Nice |
| Code postal | 06000 |
| Type de bien | Appartement |
| Surface | |
| Nombre de pièces | 2 pièces |
| Prix | 265 000,00 € |
| Informations sur l'annonceur | |
|---|---|
| Annonce de professionnel |
|
| Nom | |
| Adresse | |
| 06000 | |
| Portable | 0609949070 |
Description
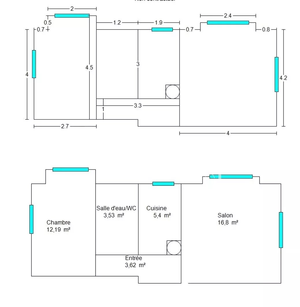
NICE CIMIEZ / LISERB, Magnifique résidence Belle Époque nichée dans un écrin de verdure, découvrez ce charmant 2 pièces de 42M² en triple exposition situé au 2ème et dernier étage. L’appartement se compose d’une entréé, séjour, cuisine indépendante, chambre, cuisine indépendante, une salle d’eau avec Wc. Possibilité de stationnement au sein de la résidence. Baigné de lumière et offrant un cadre de vie paisible, ce bien bénéficie d’un environnement calme et verdoyant. A proximité immédiate des transports, commerces et établissements scolaires. Idéal en pied-à-terre, premier achat ou investissement. Classe énergie: D. Copropriété de 4 lots.
Les photos du bien
Les diagnostics
DPE
| Bâtiment économe |
|---|
| |
| |
| |
| 239 |
| |
| |
| |
| Bâtiment énergivore |
| en kWh.an/m².an |
GES
| Faible émission de GES* |
|---|
| |
| 7 |
| |
| |
| |
| |
| |
| Forte émission de GES* |
| * Gaz à effet de serre en KgeqCO2/m².an |