Description
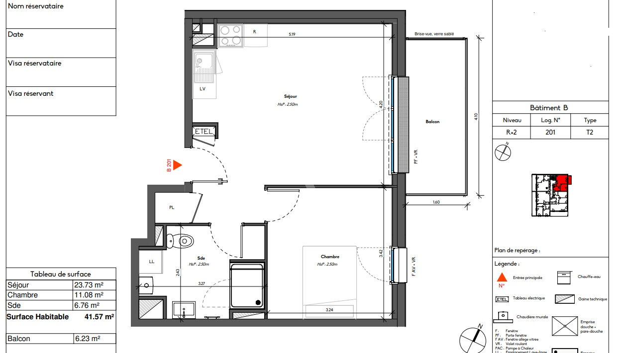
Dans un quartier résidentiel calme, cette résidence offre un emplacement privilégié à quelques minutes du centre-ville d'Avrillé et à proximité immédiate de la ligne de tramway Plateau Mayenne, facilitant l'accès à Angers, aux universités et aux pôles d'activité. Les commerces du Bois du Roy sont accessibles à 10 minutes à pied, tout comme les écoles de proximité. La résidence propose une diversité de logements, dont des maisons avec jardins privatifs et stationnements individuels, organisés autour d'un coeur d'îlot végétalisé favorisant un cadre de vie paisible. Parkings couverts en rez-de-chaussée. Au sein d'un quartier résidentiel calme, découvrez ce T2 de 41,57 m² situé au 2? étage d'une résidence contemporaine. Il se compose d'une pièce de vie lumineuse de 23,73 m² avec cuisine ouverte, prolongée par un balcon de 6,23 m², d'une chambre de 11,08 m² et d'une salle d'eau avec WC. Agencement fonctionnel, rangements intégrés et cadre de vie agréable à proximité des commerces, transports et services. Idéal résidence principale ou premier achat. Prix: 209 900 euros TTC ( +2,5% frais de notaire réduits) (Prix direct promoteur) REF: 35215KenB201 Informations auprès de Gwénaëlle GROU au 07 72 41 01 29, spécialiste Neuf Centre-ville d'Angers, quartiers de la Gare, la Madeleine, Doutre, Lafayette, Visitation, place du lycée, Quinconce, Saint Léonard, Jeanne d'Arc ,Lac de Maine, Belle-beille, Avrillé, Saint Barthélemy ... pour trouver votre solution immobilière en Résidence principale ou secondaire, LMNP, Location, Gestion immobilière. "Les informations sur les risques auxquels ce bien est exposé sont disponibles sur le site Géorisques : www.georisques.gouv.fr" Copropriété de 47 lots - dont 47 lots habitation.(Pas de procédure en cours).