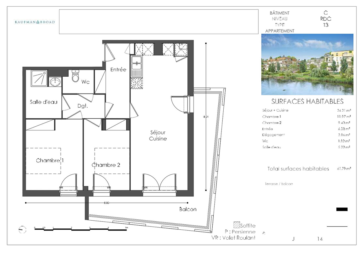
En vente Appartement 3 pièces 61 m2

Ville VILLENAVE D ORNON
Code postal 33140
Type de bien Appartement
Surface 61 m2
Nombre de pièces 3 pièces
Prix 227 900,00 €
Informations sur l'annonceur
Annonce de professionnel
Agence AGESTYS Bordeaux
Voir toutes les annonces
Adresse
33000 BORDEAUX
Téléphone Fixe 0556909339
Portable 0625216581

Description

CONTACT : ELISABETH BAZIN - 06.35.28.10.70 - e.bazin@agestys.fr A 5 minutes de la rocade sortie 20, proche du centre commercial RIVES D'ARCINS Venez découvrir ce beauT3 lumineux de 62 M² situé au rez-de chaussée d'une résidence récente avec ascenseur. L'entrée vous conduira vers le séjour avec cuisine équipée d'une plaque vitrocéramique, hotte, éléments, 1 terrasse de 19 m² sans vis à vis avec vue imprenable sur un lac, 2 chambres en parquet avec placards, salle d'eau avec meuble vasque , WC séparés. 2 places de parking à l'extérieur viennent compléter ce bien. Chauffage au gaz - chaudière à condensation Copropriété : - Nombre de lots : 240 lots dont 87 à usage d'habitation - Charges de copropriété annuelle : 1300 euros absence de procédure en cours Taxe foncière : 1138 euros Prix de vente honoraires d'agence inclus : 227 900 euros Prix de vente hors honoraires : 215 000 euros Honoraires de transaction à la charge de l'acquéreur : 12 900 euros TTC (6.00 % honoraires TTC à la charge de l'acquéreur.) Copropriété de 240 lots. Charges annuelles : 1300 euros.

Les photos du bien

Les diagnostics