En vente Appartement 5 pièces 124 m2

Ville Croissy-sur-Seine
Code postal 78290
Type de bien Appartement
Surface 124 m2
Nombre de pièces 5 pièces
Prix 720 000,00 €
Informations sur l'annonceur
Annonce de professionnel
Nom
Adresse
38110
Portable 0621797333

Description

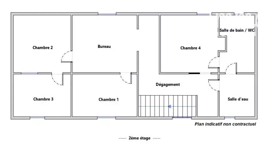
Croissy-sur-Seine. Exclusivité by Aurel. Idéalement située au cœur de toutes les commodités (commerces, écoles, transports), cette ancienne maison de maraîcher transformée en triplex est un véritable cocon de 123 m2 au sol (107 m2 carrez) sans vis à vis, auquel s’ajoute une agréable cour intérieure. Il se présente ainsi: -rez-de-chaussée: la cour privative dessert une grande entrée aménagée en dressing. -premier étage : une belle pièce de vie de 47 m2 avec cheminée, cuisine dinatoire aménagée et équipée ouverte sur le séjour, toilettes invités, chaufferie. -deuxième étage : quatre chambres, un bureau, une salle de bains avec toilettes, une salle d’eau. Lumineuse et chaleureuse, la pièce de vie traversante bénéficie d’une triple exposition ouest, sud/ouest, nord/est, et de l'éclairage naturel provenant de l’étage supérieur ce qui lui confère des jeux de lumière tout au long de la journée. Toutes les pièces de l’étage sont baignées de soleil grâce aux nombreux velux et fenêtres. La cour exposée Sud Ouest, est un havre de paix à l'abri des regards. Dans cette bâtisse du début du XIX ème le charme de l'ancien (poutres apparentes, murs en pierre, parquet, cheminée, escalier bois) s’allie au confort moderne: espace optimisé, nombreux rangements, chaudière à condensation pilotable à distance (2023), double vitrage (2015 et 2024), ravalement façade réalisé (2015). Possibilité de revenir à trois chambres et non quatre. Possibilité de louer un parking à 2 mn. Déplacement à pied: crèche, école maternelle et primaire à 2 mn, collège, marché, commerces à 5mn, RER A à 15mn à pied. Bus D et E à 50m. Petite copropriété (7 propriétaires), faibles charges (41 euros mois). Quotepart charges annuelles prévisionnelle: 490 euros, pas de procédure en cours. Honoraires à la charge du vendeur - Nombre de lots dans la copropriété: 16 - Montant moyen de la quote-part de charges courantes 490 €/an - Montant estimé des dépenses annuelles d'énergie pour un usage standard, établi à partir des prix de l'énergie de l'année 20232024 : 2130€ ~ 2890€ - Les informations sur les risques auxquels ce bien est exposé sont disponibles sur le site Géorisques : www.georisques.gouv.fr - Aurelia ROSMY - Agent commercial - EI - RSAC VERSAILLES 479669160 - RCS 40834475202127 - Caisse de garantie QBE transaction 500000 EUR

Les photos du bien

Les diagnostics


DPE
Bâtiment économe
1173
Bâtiment énergivore
en kWh.an/m².an
GES
GES non communiqué