En vente Maison 2 pièces 55 m2

Ville RAON L ETAPE
Code postal 88110
Type de bien Maison
Surface 55 m2
Nombre de pièces 2 pièces
Prix 16 000,00 €
Informations sur l'annonceur
Annonce de professionnel
Agence MENTOR - SIEGE - LOGIA - Baccarat
Voir toutes les annonces
Adresse 27 rue Adrien Michaut
54300 Baccarat
Téléphone Fixe 0383754866
Portable

Description

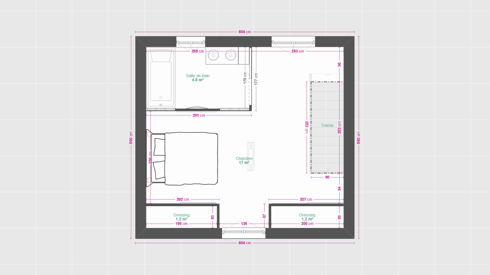
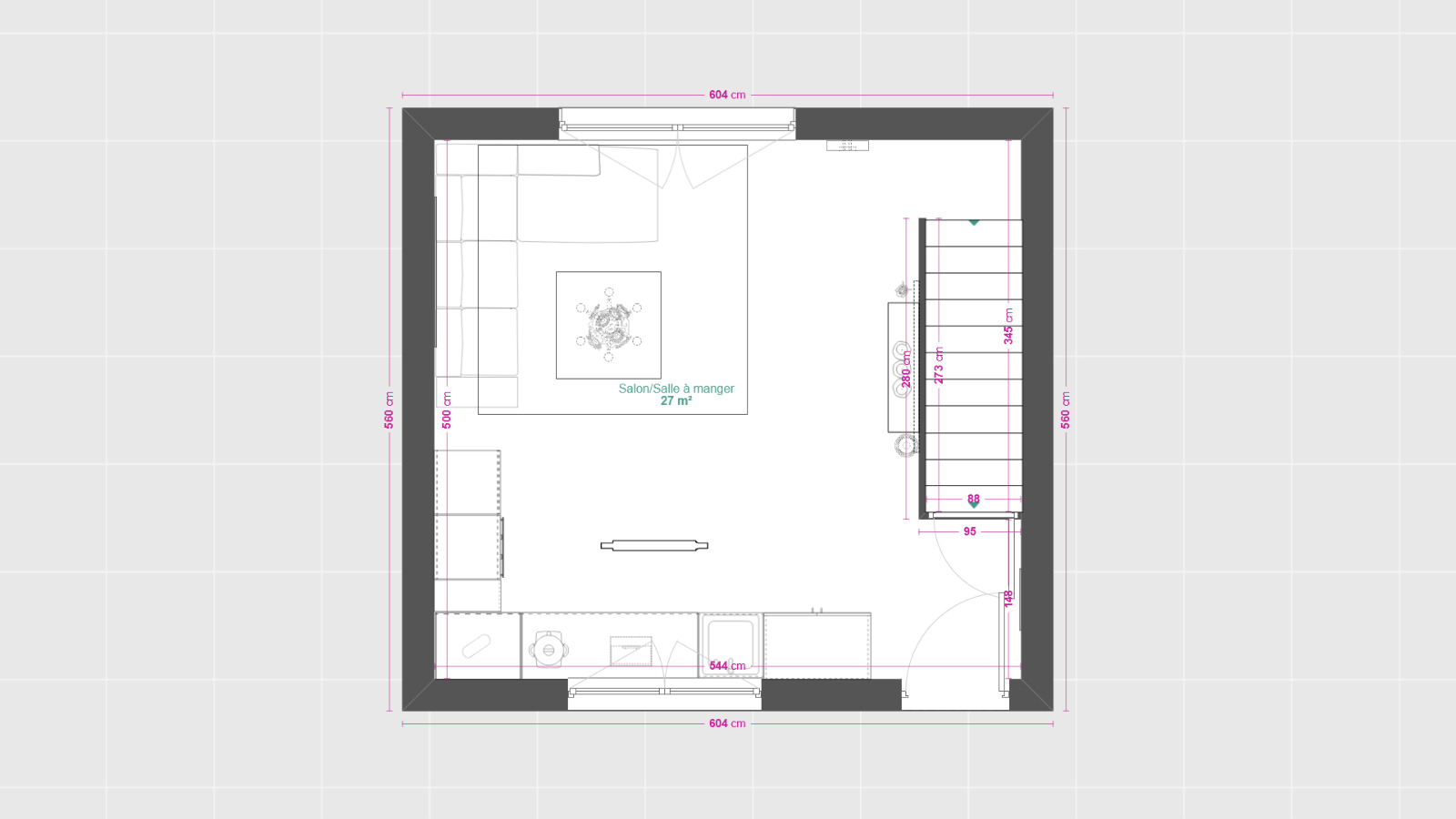
A VENDRE ? Charmant bien en vieille pierre à rénover ? Raon-l'Étape En plein coeur de Raon-l'Étape, dans une rue calme et agréable, découvrez ce bien atypique en vieille pierre de 27 m² au sol, situé en bord de plaine, à proximité immédiate d'un cours d'eau. Déjà désigné en habitation, ce bien offre une base saine pour un projet de rénovation complète, que ce soit pour un premier achat, un pied-à-terre, ou un investissement locatif (classique ou courte durée). Les atouts : Environnement paisible tout en étant en centre-ville Parking très proche Cadre naturel avec la plaine et le cours d'eau à deux pas Cachet de la vieille pierre Faible taxe foncière Potentiel d'aménagement sur mesure Description : Ce bien de 27 m² au sol est à repenser entièrement selon vos envies : création d'un studio de caractère, logement locatif optimisé ou cocon pour premier achat. Les murs en pierre offrent une vraie identité et une belle base pour un projet au charme authentique. Idéal pour : Investisseurs cherchant un produit à forte rentabilité après travaux Primo-accédants souhaitant créer leur premier chez-soi Projet locatif saisonnier ou courte durée Un bien rare à ce prix, avec autant de potentiel, dans un secteur central et calme de Raon-l'Étape. PHOTO NON CONTRACTUELLES CE SONT DES PROJECTIONS 3D ET 2D DE CE QU'IL EST POSSIBLE DE FAIRE COMME RENOVATION DANS CE BIEN ? A visiter sans tarder. zéro six soixante six soixante treize zéro deux quarante neuf Projet coup de coeur pour amateurs de rénovation et de cachet.

Les photos du bien

Les diagnostics


DPE
Energie non communiquée
GES
GES non communiqué