En vente Appartement 3 pièces 73 m2
| Ville | LYON |
| Code postal | 69007 |
| Type de bien | Appartement |
| Surface | 73 m2 |
| Nombre de pièces | 3 pièces |
| Prix | 359 000,00 € |
| Informations sur l'annonceur | |
|---|---|
| Annonce de professionnel |
|
| Agence | L'ADRESSE MACON Voir toutes les annonces |
| Adresse | 16 rue Lamartine |
| 71000 Macon | |
| Téléphone Fixe | 0385390044 |
Description
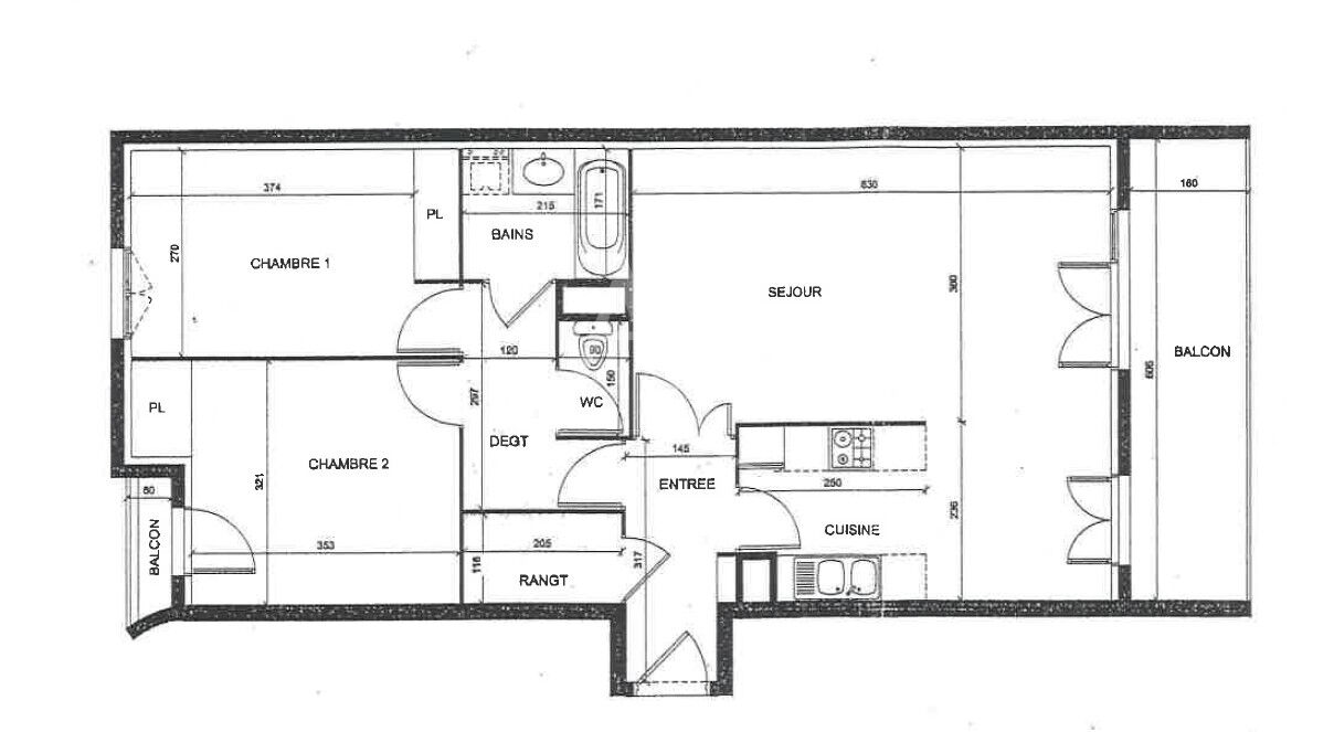
Dans un quartier en pleine évolution du 7ème arrondissement, au 309 rue Garibaldi, dans un immeuble sécurisé le PALAIS PHAROS, construit en 2005 Appartement très lumineux de 3 pièces comprenant : entrée, grand rangement, séjour avec cuisine ouverte donnant sur un grand balcon de 10 m² exposé Sud-Est avec vue sur le jardin de la résidence, 2 chambres dont une avec balcon, salle de bains avec meuble vasque et baignoire, WC séparé Garage fermé au sous-sol sécurisé Chauffage collectif par pompe à chaleur électrique sur nappe phréatique avec répartiteurs individuels et système de climatisation réversible. Envoi dossier sur demande Copropriété de 142 lots, dont 49 lots d'habitation. Agent Commercial à contacter : M. Jean-Pierre LASKAR 06.60.58.27.14 (N° SIREN 904784451) Copropriété de 142 lots - dont 49 lots habitation. (Pas de procédure en cours). Charges annuelles : 2147 euros.